• <tt id="ii0ii"><table id="ii0ii"></table></tt>
  • <tt id="ii0ii"></tt>
  • 作者:admin
  • 積分:2061
  • 等級:博士研究生
  • 2015-06-24 15:19:57
  • 樓主(閱:158911/回:22)《裝修日記》沐霞人家180平1-2-502

    案例簡介 Case description

    項目地址:沐霞人家

    項目風格:簡約歐式

    設計師:龔工

    項目經理:周工

    開工日期:2015年6月26日

    設計說明:

          本案例的業主是年輕得讓人羨慕的一對,他們直接而不失禮,熱情而不魯莽。這是為他們即將踏入婚禮殿堂準備的婚房。設計風格為簡約歐式,營造典雅、自然、高貴的氣質、浪漫的情調是本案的主題。 簡約、質樸的設計風格是眾多人群所喜愛的,生活在繁雜多變的世界里已是煩擾不休,而簡單、自然的生活空間卻能讓人身心舒暢,感到寧靜和安逸;藉著室內空間的解構和重組,便可以滿足我們對悠然自得的生活的向往和追求,讓我們在紛擾的現實生活中找到平衡,締造出一個令人心弛神往的寫意空間。

    歡迎訪問佳盛社區!
  • 作者:admin
  • 積分:2061
  • 等級:博士研究生
  • 2015-06-24 15:42:25
  • 設計總監 龔工

    從事設計行業十多年

    設計心語:設計源于生活,生活因設計而改變,成就空間和諧,讓設計物有所值,讓細節締造完美。

    設計理念:空間合理化給人們美的感受,用于探索時代技術賦予空間的新形象,不要拘泥于過去形成的空間形象。

    擅長風格:地中海、美式、后現代、現代鄉村等各種風格。

    歡迎訪問佳盛社區!
  • 作者:admin
  • 積分:2061
  • 等級:博士研究生
  • 2015-06-24 15:44:44
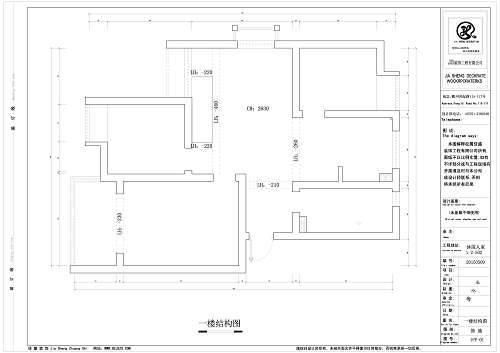
  • 原始結構圖

    歡迎訪問佳盛社區!
    偶數貼(如:2.4.6.8樓的廣告)
  • 作者:admin
  • 積分:2061
  • 等級:博士研究生
  • 2015-06-24 15:45:40
  • 一層平面布置圖

    歡迎訪問佳盛社區!
  • 作者:admin
  • 積分:2061
  • 等級:博士研究生
  • 2015-06-24 15:46:24
  • 二層平面布置圖

    歡迎訪問佳盛社區!
    偶數貼(如:2.4.6.8樓的廣告)
  • 作者:admin
  • 積分:2061
  • 等級:博士研究生
  • 2015-09-04 10:10:16
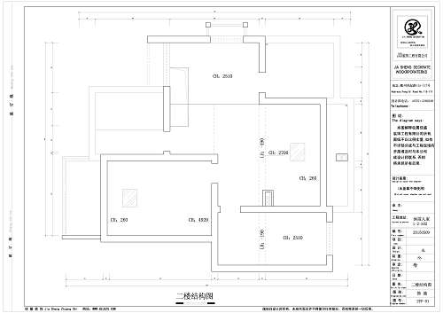
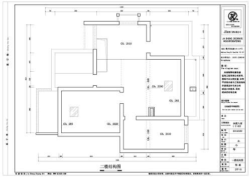
  • 二樓結構圖

    歡迎訪問佳盛社區!
  • 作者:admin
  • 積分:2061
  • 等級:博士研究生
  • 2015-09-04 10:11:50
  • 客廳效果圖

    歡迎訪問佳盛社區!
    偶數貼(如:2.4.6.8樓的廣告)
  • 作者:admin
  • 積分:2061
  • 等級:博士研究生
  • 2015-09-06 14:48:29
  • 歡迎訪問佳盛社區!
  • 作者:admin
  • 積分:2061
  • 等級:博士研究生
  • 2015-09-06 14:49:05
  • 歡迎訪問佳盛社區!
    偶數貼(如:2.4.6.8樓的廣告)
  • 作者:admin
  • 積分:2061
  • 等級:博士研究生
  • 2015-09-06 14:49:48
  • 歡迎訪問佳盛社區!
  • 作者:admin
  • 積分:2061
  • 等級:博士研究生
  • 2015-09-06 14:50:29
  • 歡迎訪問佳盛社區!
    偶數貼(如:2.4.6.8樓的廣告)


     22/ 3 123
    發帖須知:

    1,發帖請遵守《計算機信息網絡國際聯網安全保護管理辦法》、《互聯網信息服務管理辦法》、 《互聯網電子公告服務管理規定》、《維護互聯網安全的決定》等法律法規。

    2,請對您的言論負責,我們將保留您的上網記錄和發帖信息。

    3,在此發帖表示認同我們的條款,我們有權利對您的言論進行審核、刪除或者采取其他在法律、地方法規等條款規定之內的管理操作。
    內容:
    驗證: 驗證碼,看不清楚?請點擊刷新驗證碼 * 匿名發表需要進行驗證!
     
    精品精品国产理论在线观看