• <tt id="ii0ii"><table id="ii0ii"></table></tt>
  • <tt id="ii0ii"></tt>
  • 作者:admin
  • 積分:2061
  • 等級:博士研究生
  • 2015-09-01 16:34:38
  • 樓主(閱:109460/回:19)《裝修日記》道貫巷95平38-3-1-202

    項目地址:道貫巷

    項目風格:簡歐

    設計師:小林

    項目經理:毛工

    開工日期:2015年4月30日

    設計說明:本案的設計風格為簡約歐式,營造典雅、自然、高貴的氣質、浪漫的情調.簡歐風格繼承了傳統歐式風格的裝飾特點,吸取了其風格的“形神”特征,在設計上追求空間變化的連續性和形體變化的層次感.簡歐風格的裝修風格迎合了現在年輕人的喜愛,現在都市的忙碌生活,早已經讓我們煩膩了花天酒地,燈紅酒綠,我們更喜歡的一個安靜,祥和,看上去明朗寬敞舒適的家,來消除工作的疲憊,忘卻都市的喧鬧。

    歡迎訪問佳盛社區!
  • 作者:admin
  • 積分:2061
  • 等級:博士研究生
  • 2015-09-01 16:37:44

  • 主任設計師  小林
    畢業與寧波工程學院,從事設計行業十余年

    設計心語:設計是一種精神,一種態度,一種無限的追求;

    設計理念:無論什么風格都離不開人性化的設計,設計以人為本! 設計源自與生活!

    擅長風格:美式、新古典,新中式,歐式、后現代、現代簡約等各類混搭風格

    歡迎訪問佳盛社區!
  • 作者:admin
  • 積分:2061
  • 等級:博士研究生
  • 2015-09-01 16:40:31
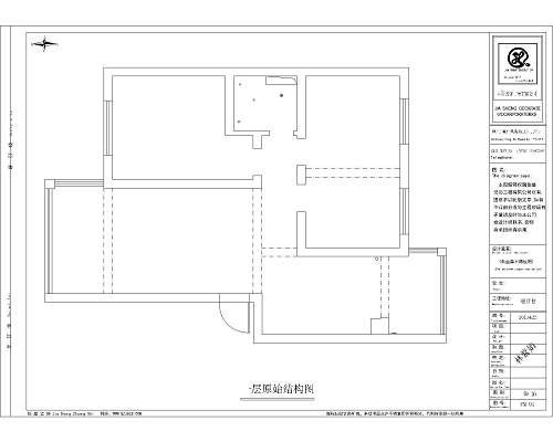
  • 原始結構圖

    歡迎訪問佳盛社區!
    偶數貼(如:2.4.6.8樓的廣告)
  • 作者:admin
  • 積分:2061
  • 等級:博士研究生
  • 2015-09-01 16:42:57
  • 平面布置圖

    歡迎訪問佳盛社區!
  • 作者:admin
  • 積分:2061
  • 等級:博士研究生
  • 2015-09-01 16:44:54
  • 客廳效果圖
    歡迎訪問佳盛社區!
    偶數貼(如:2.4.6.8樓的廣告)
  • 作者:admin
  • 積分:2061
  • 等級:博士研究生
  • 2015-09-02 14:47:57
  • 水電照
    歡迎訪問佳盛社區!
  • 作者:admin
  • 積分:2061
  • 等級:博士研究生
  • 2015-09-02 14:49:32
  • 歡迎訪問佳盛社區!
    偶數貼(如:2.4.6.8樓的廣告)
  • 作者:admin
  • 積分:2061
  • 等級:博士研究生
  • 2015-09-02 14:51:56
  • 歡迎訪問佳盛社區!
  • 作者:admin
  • 積分:2061
  • 等級:博士研究生
  • 2015-09-02 14:53:04
  • 歡迎訪問佳盛社區!
    偶數貼(如:2.4.6.8樓的廣告)
  • 作者:admin
  • 積分:2061
  • 等級:博士研究生
  • 2015-09-02 14:54:16
  • 歡迎訪問佳盛社區!
  • 作者:admin
  • 積分:2061
  • 等級:博士研究生
  • 2015-09-02 14:55:34
  • 歡迎訪問佳盛社區!
    偶數貼(如:2.4.6.8樓的廣告)


     19/ 2 12
    發帖須知:

    1,發帖請遵守《計算機信息網絡國際聯網安全保護管理辦法》、《互聯網信息服務管理辦法》、 《互聯網電子公告服務管理規定》、《維護互聯網安全的決定》等法律法規。

    2,請對您的言論負責,我們將保留您的上網記錄和發帖信息。

    3,在此發帖表示認同我們的條款,我們有權利對您的言論進行審核、刪除或者采取其他在法律、地方法規等條款規定之內的管理操作。
    內容:
    驗證: 驗證碼,看不清楚?請點擊刷新驗證碼 * 匿名發表需要進行驗證!
     
    精品精品国产理论在线观看