• <tt id="ii0ii"><table id="ii0ii"></table></tt>
  • <tt id="ii0ii"></tt>
  • 作者:admin
  • 積分:2061
  • 等級:博士研究生
  • 2015-09-05 9:46:34
  • 樓主(閱:106753/回:14)《裝修日記》世通華庭109平23-1-1302

    項目地址:世通華庭23-1-1302

    項目風格:后現代裝飾

    設計師:小姜

    項目經理:周工

    開工日期:2015年8月29日

    設計說明:

        后現代裝修風格以探索創新的手法展現給我們一個全新的室內裝修體驗,其內含的奇思妙想極大的豐富了我們當代人的生活。后現代裝修風格靈活的造型手法、豐富的視覺體驗,改變了傳統邏輯的家居形象,帶給我們的是充滿創造力和生命力的室內空間,同樣包含著浪漫和溫馨的特點。這種糅合大眾和行家的理念使得家居形象豐盈且飽滿,絕對是全新生活的感受。

    歡迎訪問佳盛社區!
  • 作者:admin
  • 積分:2061
  • 等級:博士研究生
  • 2015-09-05 9:48:02
  • 設計師小姜

    從事設計行業五年

    設計心語:一個好的家居,不在于裝的非常豪華,而是在于它空間的趣味性;不要設定一個框架式的美學給業主,畢竟業主是家的主人。

    設計理念:以人為本為中心,創造功能合理、舒適優美、滿足人們物質與精神生活需要的室內環境!

    擅長風格:美式、新古典,新中式,歐式、后現代、現代簡約等各類混搭風格

    歡迎訪問佳盛社區!
  • 作者:admin
  • 積分:2061
  • 等級:博士研究生
  • 2015-09-05 9:48:43
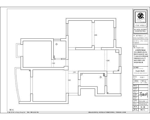
  • 平面結構圖

    歡迎訪問佳盛社區!
    偶數貼(如:2.4.6.8樓的廣告)
  • 作者:admin
  • 積分:2061
  • 等級:博士研究生
  • 2015-09-05 9:49:14
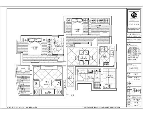
  • 平面方案圖
    歡迎訪問佳盛社區!
  • 作者:admin
  • 積分:2061
  • 等級:博士研究生
  • 2015-09-05 9:50:04
  • 客廳效果圖

    歡迎訪問佳盛社區!
    偶數貼(如:2.4.6.8樓的廣告)
  • 作者:admin
  • 積分:2061
  • 等級:博士研究生
  • 2015-09-05 9:50:53
  • 餐廳效果圖


    歡迎訪問佳盛社區!
  • 作者:admin
  • 積分:2061
  • 等級:博士研究生
  • 2015-09-13 14:48:19
  • 水電圖

    歡迎訪問佳盛社區!
    偶數貼(如:2.4.6.8樓的廣告)
  • 作者:admin
  • 積分:2061
  • 等級:博士研究生
  • 2015-09-13 14:48:33
  • 歡迎訪問佳盛社區!
  • 作者:admin
  • 積分:2061
  • 等級:博士研究生
  • 2015-09-13 14:48:44
  • 歡迎訪問佳盛社區!
    偶數貼(如:2.4.6.8樓的廣告)
  • 作者:admin
  • 積分:2061
  • 等級:博士研究生
  • 2015-09-13 14:48:53
  • 歡迎訪問佳盛社區!
  • 作者:admin
  • 積分:2061
  • 等級:博士研究生
  • 2015-09-13 14:49:23
  • 歡迎訪問佳盛社區!
    偶數貼(如:2.4.6.8樓的廣告)


     14/ 2 12
    發帖須知:

    1,發帖請遵守《計算機信息網絡國際聯網安全保護管理辦法》、《互聯網信息服務管理辦法》、 《互聯網電子公告服務管理規定》、《維護互聯網安全的決定》等法律法規。

    2,請對您的言論負責,我們將保留您的上網記錄和發帖信息。

    3,在此發帖表示認同我們的條款,我們有權利對您的言論進行審核、刪除或者采取其他在法律、地方法規等條款規定之內的管理操作。
    內容:
    驗證: 驗證碼,看不清楚?請點擊刷新驗證碼 * 匿名發表需要進行驗證!
     
    精品精品国产理论在线观看