• <tt id="ii0ii"><table id="ii0ii"></table></tt>
  • <tt id="ii0ii"></tt>
  • 作者:admin
  • 積分:2061
  • 等級:博士研究生
  • 2015-05-06 12:51:23
  • 樓主(閱:191015/回:23)雍景柯苑200平 現代風格 軟裝即將開始

    雍景柯苑周圍的環境真的是很不錯,業主就是打算退休后在那邊休閑生活,。買了房子很久,終于要準備裝修了。所以設計也是按簡約實用來的。樓梯的位置也是改動過的,另外還增加了衛生間。是房子整體空間合理寬敞
    衢州佳盛裝飾實價經營,客戶進店就可看見我公司我單價展示牌,所有工程所需材料品牌和項目單價一目了然
    地址:巨化雍景柯苑
    風格:現代簡約
    面積:200平方

    歡迎訪問佳盛社區!
  • 作者:admin
  • 積分:2061
  • 等級:博士研究生
  • 2015-05-06 12:52:14
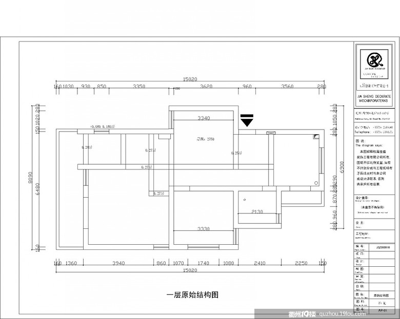
  • 一樓原始結構

    歡迎訪問佳盛社區!
  • 作者:admin
  • 積分:2061
  • 等級:博士研究生
  • 2015-05-06 12:52:40
  • 一樓平面圖


    歡迎訪問佳盛社區!
    偶數貼(如:2.4.6.8樓的廣告)
  • 作者:admin
  • 積分:2061
  • 等級:博士研究生
  • 2015-05-06 12:53:09
  • 二樓原始結構圖

    歡迎訪問佳盛社區!
  • 作者:admin
  • 積分:2061
  • 等級:博士研究生
  • 2015-05-06 12:53:34
  • 二樓平面設計圖

    歡迎訪問佳盛社區!
    偶數貼(如:2.4.6.8樓的廣告)
  • 作者:admin
  • 積分:2061
  • 等級:博士研究生
  • 2015-05-06 12:54:04
  • 客廳平面圖


    歡迎訪問佳盛社區!
  • 作者:admin
  • 積分:2061
  • 等級:博士研究生
  • 2015-05-06 12:55:48
  • 水電




    歡迎訪問佳盛社區!
    偶數貼(如:2.4.6.8樓的廣告)
  • 作者:admin
  • 積分:2061
  • 等級:博士研究生
  • 2015-05-06 12:58:20
  • 這個房子打墻的地方太多了。所以已經是空空的了



    歡迎訪問佳盛社區!
  • 作者:admin
  • 積分:2061
  • 等級:博士研究生
  • 2015-05-06 13:04:28
  • 水電



    歡迎訪問佳盛社區!
    偶數貼(如:2.4.6.8樓的廣告)
  • 作者:admin
  • 積分:2061
  • 等級:博士研究生
  • 2015-05-06 13:05:14
  • 水管接口

    歡迎訪問佳盛社區!
  • 作者:admin
  • 積分:2061
  • 等級:博士研究生
  • 2015-05-06 13:06:05
  • 電線布局

    歡迎訪問佳盛社區!
    偶數貼(如:2.4.6.8樓的廣告)


     23/ 3 123
    發帖須知:

    1,發帖請遵守《計算機信息網絡國際聯網安全保護管理辦法》、《互聯網信息服務管理辦法》、 《互聯網電子公告服務管理規定》、《維護互聯網安全的決定》等法律法規。

    2,請對您的言論負責,我們將保留您的上網記錄和發帖信息。

    3,在此發帖表示認同我們的條款,我們有權利對您的言論進行審核、刪除或者采取其他在法律、地方法規等條款規定之內的管理操作。
    內容:
    驗證: 驗證碼,看不清楚?請點擊刷新驗證碼 * 匿名發表需要進行驗證!
     
    精品精品国产理论在线观看