• <tt id="ii0ii"><table id="ii0ii"></table></tt>
  • <tt id="ii0ii"></tt>
  • 作者:admin
  • 積分:2061
  • 等級:博士研究生
  • 2015-05-06 14:05:11
  • 樓主(閱:161792/回:21)香榭麗舍3號樓 105平歐式風格 硬裝已結束

    因為樓主自己的房子也在這個小區,客戶去家里看了現場的施工工藝后還是比較滿意的。已經在本小區開工了6套了,這套是深色歐式風格,戶主是對年輕時尚的上班族,樓主文化有限。優美的語句描述不出來。
    衢州佳盛裝飾2014年實價經營,客戶進店就可看見我公司我單價展示牌,所有工程所需材料品牌和項目單價一目了然
    地址:香榭麗舍花園
    面積:105平方
    風格:深色歐式

    歡迎訪問佳盛社區!
  • 作者:admin
  • 積分:2061
  • 等級:博士研究生
  • 2015-05-06 14:06:00
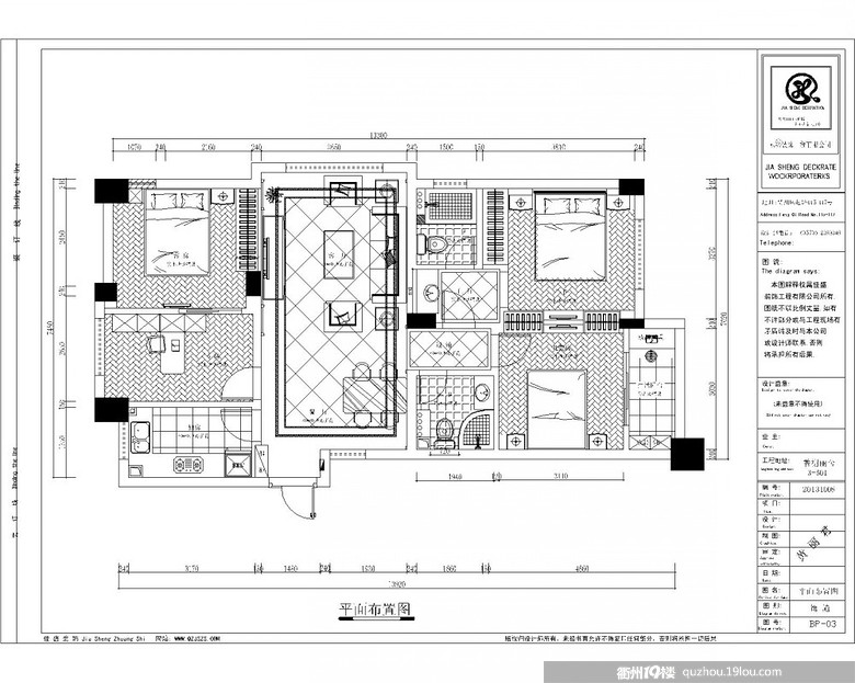
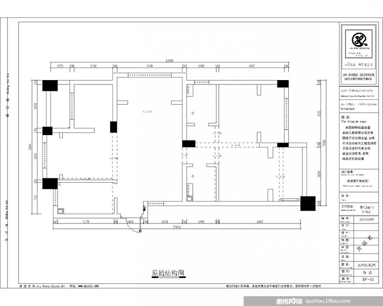
  • 原始結構圖和平面布置圖



    歡迎訪問佳盛社區!
  • 作者:admin
  • 積分:2061
  • 等級:博士研究生
  • 2015-05-06 14:06:27
  • 設計效果圖

    歡迎訪問佳盛社區!
    偶數貼(如:2.4.6.8樓的廣告)
  • 作者:admin
  • 積分:2061
  • 等級:博士研究生
  • 2015-05-06 14:07:08
  • 開工大吉保護門套

    歡迎訪問佳盛社區!
  • 作者:admin
  • 積分:2061
  • 等級:博士研究生
  • 2015-05-06 14:07:49
  • 歡迎訪問佳盛社區!
    偶數貼(如:2.4.6.8樓的廣告)
  • 作者:admin
  • 積分:2061
  • 等級:博士研究生
  • 2015-05-06 14:08:27
  • 這個窗的玻璃壞了,要通知物業來更換

    歡迎訪問佳盛社區!
  • 作者:admin
  • 積分:2061
  • 等級:博士研究生
  • 2015-05-06 14:09:21
  • 準備工作

    歡迎訪問佳盛社區!
    偶數貼(如:2.4.6.8樓的廣告)
  • 作者:admin
  • 積分:2061
  • 等級:博士研究生
  • 2015-05-06 14:10:00
  • 臨時馬桶就位方便師傅上洗手間,衛生

    歡迎訪問佳盛社區!
  • 作者:admin
  • 積分:2061
  • 等級:博士研究生
  • 2015-05-06 14:11:24
  • 現場核對圖紙。交流



    歡迎訪問佳盛社區!
    偶數貼(如:2.4.6.8樓的廣告)
  • 作者:admin
  • 積分:2061
  • 等級:博士研究生
  • 2015-05-06 14:12:05
  • 歡迎訪問佳盛社區!
  • 作者:admin
  • 積分:2061
  • 等級:博士研究生
  • 2015-05-06 14:14:15
  • 在要打墻的地方做上標志




    歡迎訪問佳盛社區!
    偶數貼(如:2.4.6.8樓的廣告)


     21/ 3 123
    發帖須知:

    1,發帖請遵守《計算機信息網絡國際聯網安全保護管理辦法》、《互聯網信息服務管理辦法》、 《互聯網電子公告服務管理規定》、《維護互聯網安全的決定》等法律法規。

    2,請對您的言論負責,我們將保留您的上網記錄和發帖信息。

    3,在此發帖表示認同我們的條款,我們有權利對您的言論進行審核、刪除或者采取其他在法律、地方法規等條款規定之內的管理操作。
    內容:
    驗證: 驗證碼,看不清楚?請點擊刷新驗證碼 * 匿名發表需要進行驗證!
     
    精品精品国产理论在线观看