• <tt id="ii0ii"><table id="ii0ii"></table></tt>
  • <tt id="ii0ii"></tt>
  • 作者:admin
  • 積分:2061
  • 等級:博士研究生
  • 2015-05-06 14:45:35
  • 樓主(閱:163656/回:21)金河灣148平 美式風格 完工美照大放送

    這個房子的改動也不小。整個鞋柜及柜門都市公司師傅制作。 大氣實用的酒柜也是公司制作。包括酒柜邊的整面造型很隱形門。整個客廳過道廚房前部是微晶磚加工鋪貼而成 電視背景采用大理石 沙發背景采用硬包 整體效果很不錯,可是樓主的拍照技術是在有限,應該好好學習拍照了。不過還請大家細細欣賞,
    衢州佳盛裝飾實價經營,客戶進店就可看見我公司我單價展示牌,所有工程所需材料品牌和項目單價一目了然
    地址:金河灣
    面積:148平方
    風格:美式風格

    歡迎訪問佳盛社區!
  • 作者:admin
  • 積分:2061
  • 等級:博士研究生
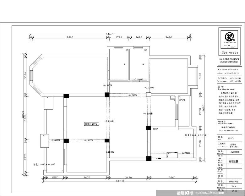
  • 2015-05-06 14:46:14
  • 原始結構圖


    歡迎訪問佳盛社區!
  • 作者:admin
  • 積分:2061
  • 等級:博士研究生
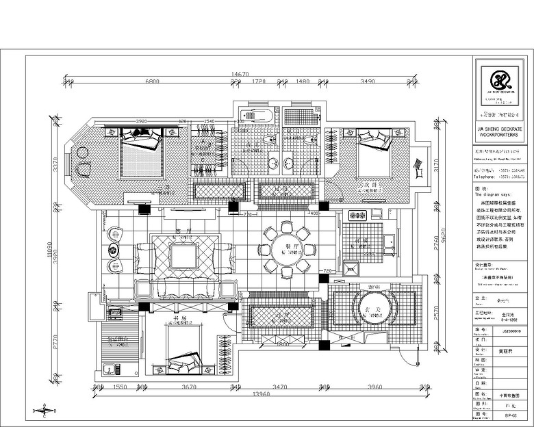
  • 2015-05-06 14:46:41
  • 平面設計圖

    歡迎訪問佳盛社區!
    偶數貼(如:2.4.6.8樓的廣告)
  • 作者:admin
  • 積分:2061
  • 等級:博士研究生
  • 2015-05-06 14:47:05
  • 客廳效果圖

    歡迎訪問佳盛社區!
  • 作者:admin
  • 積分:2061
  • 等級:博士研究生
  • 2015-05-06 14:47:30
  • 主臥效果圖

    歡迎訪問佳盛社區!
    偶數貼(如:2.4.6.8樓的廣告)
  • 作者:admin
  • 積分:2061
  • 等級:博士研究生
  • 2015-05-06 14:48:08
  • 進門玄關

    歡迎訪問佳盛社區!
  • 作者:admin
  • 積分:2061
  • 等級:博士研究生
  • 2015-05-06 14:49:01
  • 歡迎訪問佳盛社區!
    偶數貼(如:2.4.6.8樓的廣告)
  • 作者:admin
  • 積分:2061
  • 等級:博士研究生
  • 2015-05-06 14:49:37
  • 進門鞋柜 整體的鞋柜可以收納更多的鞋子


    歡迎訪問佳盛社區!
  • 作者:admin
  • 積分:2061
  • 等級:博士研究生
  • 2015-05-06 14:50:14
  • 門廳造型門洞。公司師傅制作,

    歡迎訪問佳盛社區!
    偶數貼(如:2.4.6.8樓的廣告)
  • 作者:admin
  • 積分:2061
  • 等級:博士研究生
  • 2015-05-06 14:50:46
  • 酒柜,3.5米*2.4米的酒柜。師傅制作,大氣穩重

    歡迎訪問佳盛社區!
  • 作者:admin
  • 積分:2061
  • 等級:博士研究生
  • 2015-05-06 14:53:31
  • 歡迎訪問佳盛社區!
    偶數貼(如:2.4.6.8樓的廣告)


     21/ 3 123
    發帖須知:

    1,發帖請遵守《計算機信息網絡國際聯網安全保護管理辦法》、《互聯網信息服務管理辦法》、 《互聯網電子公告服務管理規定》、《維護互聯網安全的決定》等法律法規。

    2,請對您的言論負責,我們將保留您的上網記錄和發帖信息。

    3,在此發帖表示認同我們的條款,我們有權利對您的言論進行審核、刪除或者采取其他在法律、地方法規等條款規定之內的管理操作。
    內容:
    驗證: 驗證碼,看不清楚?請點擊刷新驗證碼 * 匿名發表需要進行驗證!
     
    精品精品国产理论在线观看