• <tt id="ii0ii"><table id="ii0ii"></table></tt>
  • <tt id="ii0ii"></tt>
  • 作者:admin
  • 積分:2061
  • 等級:博士研究生
  • 2015-05-05 12:52:06
  • 樓主(閱:42586/回:9)香榭麗舍15號樓復式開工大吉

    香榭麗舍小區陸陸續續開工了10余套,這套房子是15號樓的復式套房,業主之前的說是要現代風格,經過溝通以后,業主家有2位可愛的小公主,結合業主喜歡的圖片,后定位為簡歐,溫馨的壁紙和石膏線的走邊,放整個空間感覺溫馨浪漫,,最后小編發現一個問題,哈哈,佳盛的業主都是好忙碌呀,所有事宜都是交給我們裝修公司劃算的,再次感謝業主的認可哈哈。你們就放心忙去吧
    歡迎訪問佳盛社區!
  • 作者:admin
  • 積分:2061
  • 等級:博士研究生
  • 2015-05-05 12:52:50
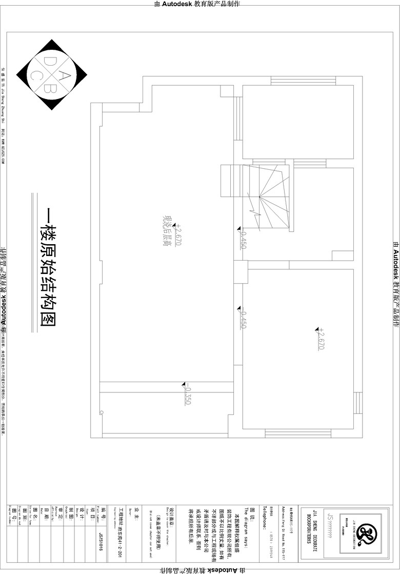
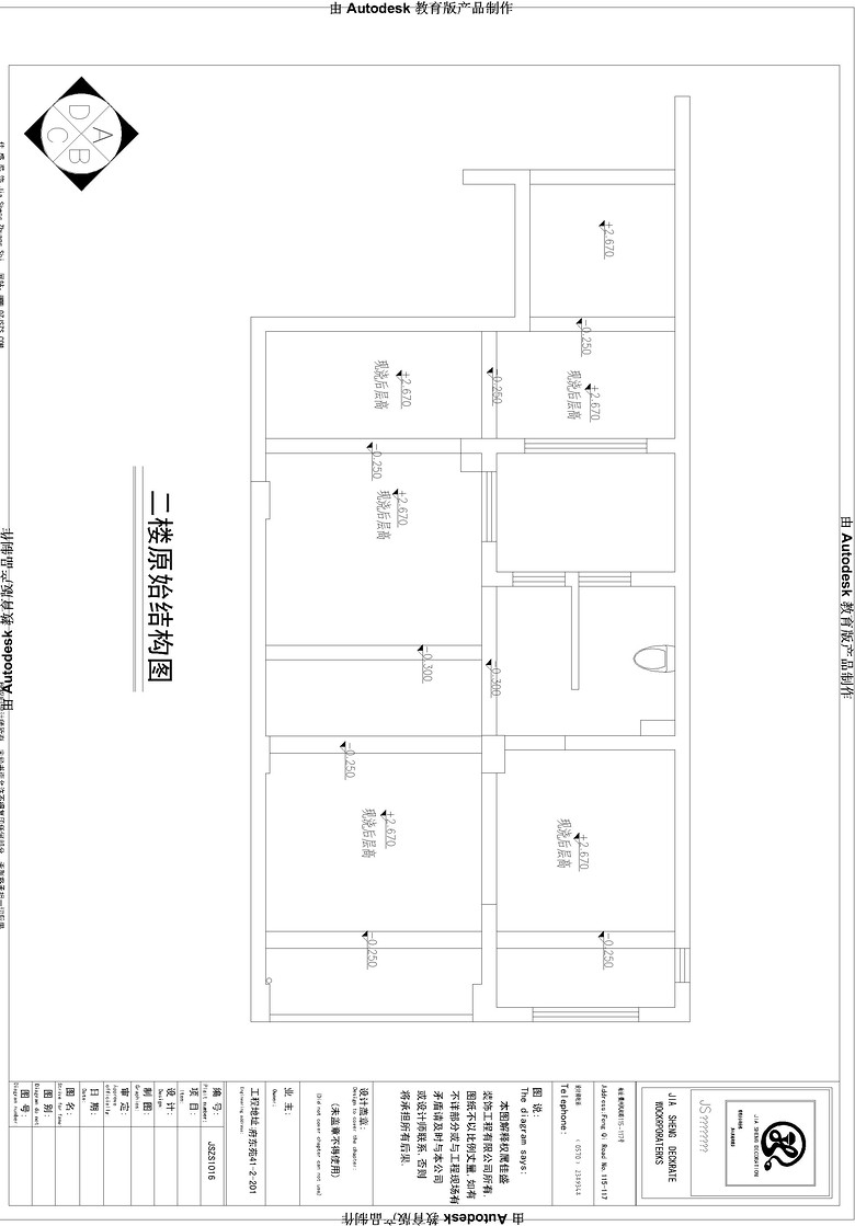
  • 首先看到的就是房子原始的結構圖了


    歡迎訪問佳盛社區!
  • 作者:admin
  • 積分:2061
  • 等級:博士研究生
  • 2015-05-05 12:53:27
  • 歡迎訪問佳盛社區!
    偶數貼(如:2.4.6.8樓的廣告)
  • 作者:admin
  • 積分:2061
  • 等級:博士研究生
  • 2015-05-05 12:54:11
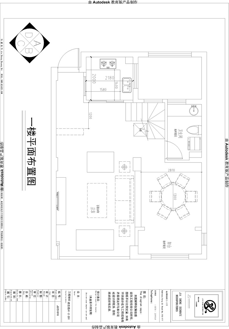
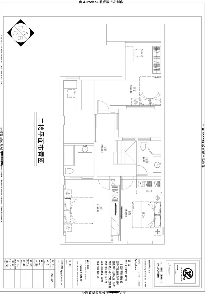
  • 接著就是平面布置圖了

    歡迎訪問佳盛社區!
  • 作者:admin
  • 積分:2061
  • 等級:博士研究生
  • 2015-05-05 12:55:02
  • 歡迎訪問佳盛社區!
    偶數貼(如:2.4.6.8樓的廣告)
  • 作者:admin
  • 積分:2061
  • 等級:博士研究生
  • 2015-05-05 13:01:57
  • 效果圖展示

    歡迎訪問佳盛社區!
  • 作者:admin
  • 積分:2061
  • 等級:博士研究生
  • 2015-05-05 13:02:11
  • 因為樓板和樓梯是業主之前衣架澆筑好了,是以省去了現澆的時間,開工后就可以直接放樣敲墻了,
    歡迎訪問佳盛社區!
    偶數貼(如:2.4.6.8樓的廣告)
  • 作者:admin
  • 積分:2061
  • 等級:博士研究生
  • 2015-05-05 13:13:10
  • 首先當然是先把門套套好了


    歡迎訪問佳盛社區!
  • 作者:admin
  • 積分:2061
  • 等級:博士研究生
  • 2015-05-05 13:18:58
  • 和打墻師父放樣敲打位置


    歡迎訪問佳盛社區!
    偶數貼(如:2.4.6.8樓的廣告)
  • 作者:admin
  • 積分:2061
  • 等級:博士研究生
  • 2015-05-05 13:19:40
  • 樓下就是在造的小區幼兒園。以后方便熱鬧了
    歡迎訪問佳盛社區!


     9/ 1 1
    發帖須知:

    1,發帖請遵守《計算機信息網絡國際聯網安全保護管理辦法》、《互聯網信息服務管理辦法》、 《互聯網電子公告服務管理規定》、《維護互聯網安全的決定》等法律法規。

    2,請對您的言論負責,我們將保留您的上網記錄和發帖信息。

    3,在此發帖表示認同我們的條款,我們有權利對您的言論進行審核、刪除或者采取其他在法律、地方法規等條款規定之內的管理操作。
    內容:
    驗證: 驗證碼,看不清楚?請點擊刷新驗證碼 * 匿名發表需要進行驗證!
     
    精品精品国产理论在线观看