• <tt id="ii0ii"><table id="ii0ii"></table></tt>
  • <tt id="ii0ii"></tt>
  • 作者:admin
  • 積分:2061
  • 等級:博士研究生
  • 2015-05-05 13:24:38
  • 樓主(閱:41899/回:3)香榭麗舍花園120平loft戶型 整體完工

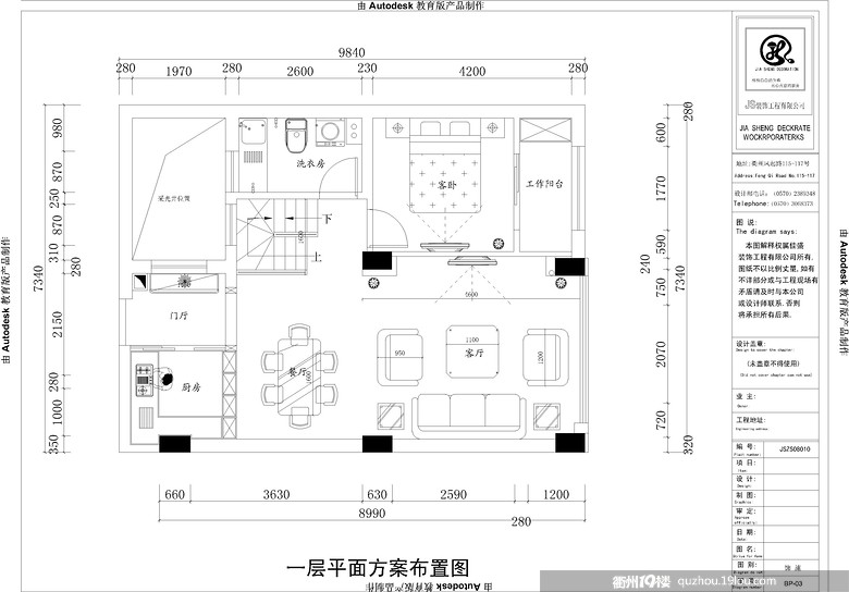
    地址:衢州香榭麗舍花園2號樓復式
    面積:樓上樓下120平方
    現澆面積45+
    裝修公司:衢州佳盛裝飾

    衢州佳盛裝飾2014年實價經營,客戶進店就可看見我公司我單價展示牌,所有工程所需材料品牌和項目單價一目了然
    第一次去看板房就喜歡上了復式的居住空間,自己做裝修的知道,這樣的戶型房子在裝修上是要多花費一點的,沒有樓板,沒有隔墻,。哈哈?墒茄谏w不住喜悅的心情。,大理石終于安裝完畢了





    歡迎訪問佳盛社區!
  • 作者:admin
  • 積分:2061
  • 等級:博士研究生
  • 2015-05-05 13:30:11
  • 師傅正在一步一步進行中。。








    歡迎訪問佳盛社區!
  • 作者:admin
  • 積分:2061
  • 等級:博士研究生
  • 2015-05-05 13:32:58
  • 鋼筋要扎2層哦,這樣樓板才牢固嘛





    歡迎訪問佳盛社區!
    偶數貼(如:2.4.6.8樓的廣告)
  • 作者:admin
  • 積分:2061
  • 等級:博士研究生
  • 2015-05-05 13:38:11
  • 繼續上圖









    歡迎訪問佳盛社區!


     3/ 1 1
    發帖須知:

    1,發帖請遵守《計算機信息網絡國際聯網安全保護管理辦法》、《互聯網信息服務管理辦法》、 《互聯網電子公告服務管理規定》、《維護互聯網安全的決定》等法律法規。

    2,請對您的言論負責,我們將保留您的上網記錄和發帖信息。

    3,在此發帖表示認同我們的條款,我們有權利對您的言論進行審核、刪除或者采取其他在法律、地方法規等條款規定之內的管理操作。
    內容:
    驗證: 驗證碼,看不清楚?請點擊刷新驗證碼 * 匿名發表需要進行驗證!
     
    精品精品国产理论在线观看