• <tt id="ii0ii"><table id="ii0ii"></table></tt>
  • <tt id="ii0ii"></tt>
  • 作者:admin
  • 積分:2061
  • 等級:博士研究生
  • 2015-05-05 14:07:46
  • 樓主(閱:122131/回:12)陽光水岸139平 美式風格 完工照欣賞

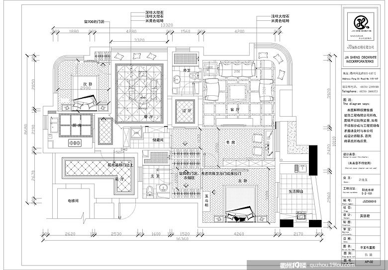
    業主許先生在裝修前也咨詢了很多家裝修公司。也看過了很多的平面布置圖,但是因為房屋戶型很特殊,都沒有看到合意的方案,按照原結構客廳太小,沙發對著進戶門,電視背景也沒用合理的位置,餐廳也特別的狹小,餐桌也無法擺放。過道空間浪費很大。經過公司設計師的巧妙設計。把原來的主臥改成客廳,客廳改成餐廳,餐廳改成次臥。得到了業主家人的一至滿意。經過公司施工團隊數月的精雕細琢和業主許先生的配合,終于打造出業主心目中的居家之所。業主許先生說自己眼光不錯,沒用選錯裝修公司,要是再買房子還找我們公司裝修。
    地址:陽光水岸5號樓邊套
    房屋面積:139平方
    裝修風格:美式
    歡迎訪問佳盛社區!
  • 作者:admin
  • 積分:2061
  • 等級:博士研究生
  • 2015-05-05 14:07:52
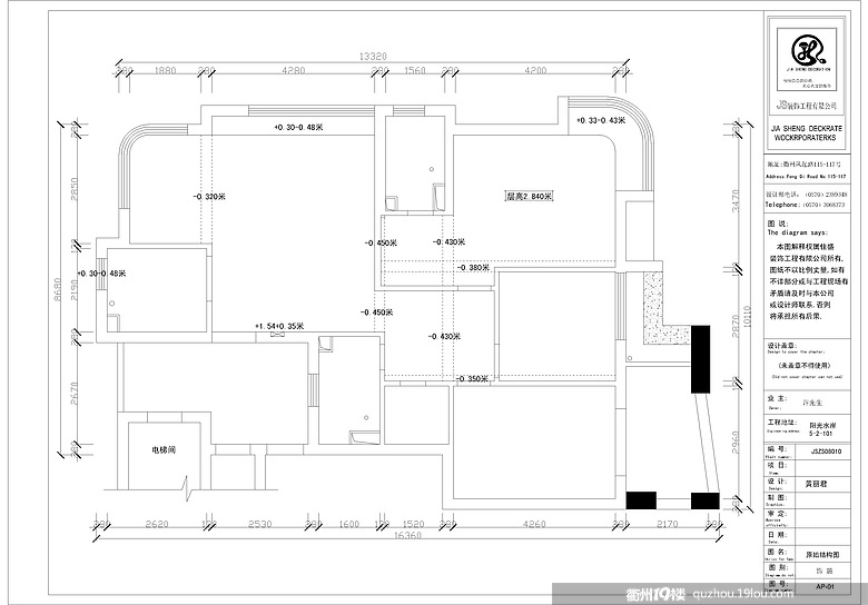
  • 原始結構圖
    歡迎訪問佳盛社區!
  • 作者:admin
  • 積分:2061
  • 等級:博士研究生
  • 2015-05-05 14:08:20
  • 歡迎訪問佳盛社區!
    偶數貼(如:2.4.6.8樓的廣告)
  • 作者:admin
  • 積分:2061
  • 等級:博士研究生
  • 2015-05-05 14:09:00
  • 平面布置圖

    歡迎訪問佳盛社區!
  • 作者:admin
  • 積分:2061
  • 等級:博士研究生
  • 2015-05-05 14:09:46
  • 客廳效果圖

    歡迎訪問佳盛社區!
    偶數貼(如:2.4.6.8樓的廣告)
  • 作者:admin
  • 積分:2061
  • 等級:博士研究生
  • 2015-05-05 14:10:37
  • 餐廳效果圖

    歡迎訪問佳盛社區!
  • 作者:admin
  • 積分:2061
  • 等級:博士研究生
  • 2015-05-05 14:11:11
  • 進門的鞋柜,是公司師傅做

    歡迎訪問佳盛社區!
    偶數貼(如:2.4.6.8樓的廣告)
  • 作者:admin
  • 積分:2061
  • 等級:博士研究生
  • 2015-05-05 14:11:44
  • 進門處

    歡迎訪問佳盛社區!
  • 作者:admin
  • 積分:2061
  • 等級:博士研究生
  • 2015-05-05 14:12:15
  • 過道

    歡迎訪問佳盛社區!
    偶數貼(如:2.4.6.8樓的廣告)
  • 作者:admin
  • 積分:2061
  • 等級:博士研究生
  • 2015-05-05 14:12:52
  • 餐廳  這個可是原來客廳的位置哦,還是放客廳會不會感覺緊湊呢 ?

    歡迎訪問佳盛社區!
  • 作者:admin
  • 積分:2061
  • 等級:博士研究生
  • 2015-05-05 14:13:52
  • 外衛 哈哈我拍照技術不是很好

    歡迎訪問佳盛社區!
    偶數貼(如:2.4.6.8樓的廣告)


     12/ 2 12
    發帖須知:

    1,發帖請遵守《計算機信息網絡國際聯網安全保護管理辦法》、《互聯網信息服務管理辦法》、 《互聯網電子公告服務管理規定》、《維護互聯網安全的決定》等法律法規。

    2,請對您的言論負責,我們將保留您的上網記錄和發帖信息。

    3,在此發帖表示認同我們的條款,我們有權利對您的言論進行審核、刪除或者采取其他在法律、地方法規等條款規定之內的管理操作。
    內容:
    驗證: 驗證碼,看不清楚?請點擊刷新驗證碼 * 匿名發表需要進行驗證!
     
    精品精品国产理论在线观看