• <tt id="ii0ii"><table id="ii0ii"></table></tt>
  • <tt id="ii0ii"></tt>
  • 作者:admin
  • 積分:2061
  • 等級:博士研究生
  • 2015-05-05 16:30:58
  • 樓主(閱:43810/回:7)楊姐家的簡歐小清新 木工完工

    地址:興華西苑16幢
    面積:102平方
    風格:簡歐
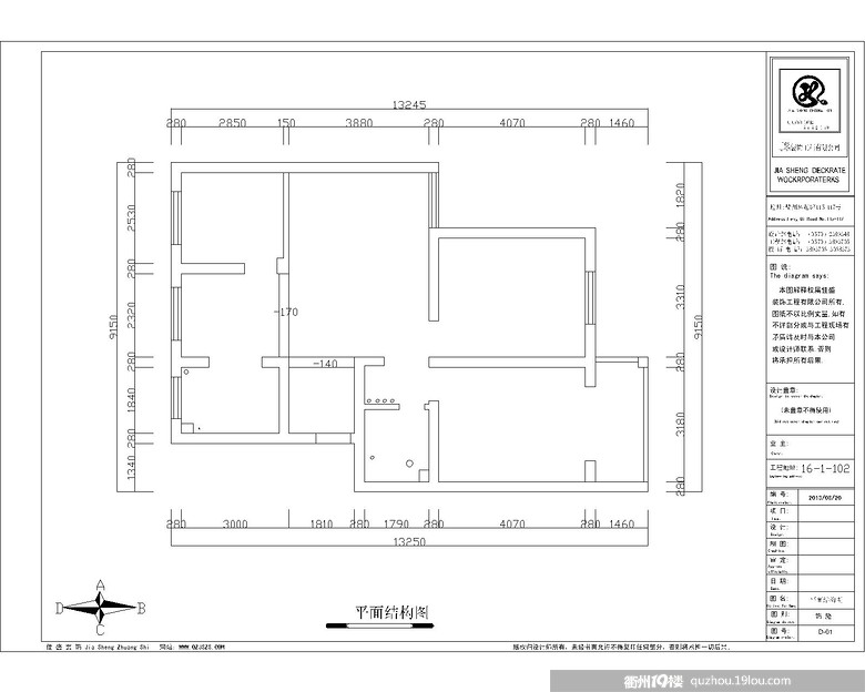
    原始結構圖


    歡迎訪問佳盛社區!
  • 作者:admin
  • 積分:2061
  • 等級:博士研究生
  • 2015-05-05 16:31:28
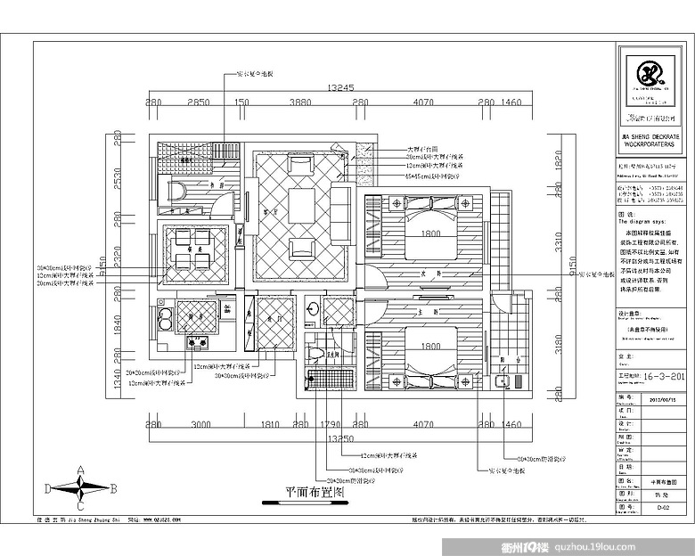
  • 平面布置圖

    歡迎訪問佳盛社區!
  • 作者:admin
  • 積分:2061
  • 等級:博士研究生
  • 2015-05-05 16:32:02
  • 客廳效果圖

    歡迎訪問佳盛社區!
    偶數貼(如:2.4.6.8樓的廣告)
  • 作者:admin
  • 積分:2061
  • 等級:博士研究生
  • 2015-05-05 16:32:34
  • 先把門套裝起來

    歡迎訪問佳盛社區!
  • 作者:admin
  • 積分:2061
  • 等級:博士研究生
  • 2015-05-05 16:33:27
  • 歡迎訪問佳盛社區!
    偶數貼(如:2.4.6.8樓的廣告)
  • 作者:admin
  • 積分:2061
  • 等級:博士研究生
  • 2015-05-05 16:35:30
  • 動工前放樣,確實位置


    歡迎訪問佳盛社區!
  • 作者:admin
  • 積分:2061
  • 等級:博士研究生
  • 2015-05-05 16:36:46
  • 仔細對照設計圖,

    歡迎訪問佳盛社區!
    偶數貼(如:2.4.6.8樓的廣告)
  • 作者:admin
  • 積分:2061
  • 等級:博士研究生
  • 2015-05-05 16:38:26
  • 貼好的地磚都用整塊的石膏板鋪起來哦,這樣就保護地磚不會損傷哦




    歡迎訪問佳盛社區!


     7/ 1 1
    發帖須知:

    1,發帖請遵守《計算機信息網絡國際聯網安全保護管理辦法》、《互聯網信息服務管理辦法》、 《互聯網電子公告服務管理規定》、《維護互聯網安全的決定》等法律法規。

    2,請對您的言論負責,我們將保留您的上網記錄和發帖信息。

    3,在此發帖表示認同我們的條款,我們有權利對您的言論進行審核、刪除或者采取其他在法律、地方法規等條款規定之內的管理操作。
    內容:
    驗證: 驗證碼,看不清楚?請點擊刷新驗證碼 * 匿名發表需要進行驗證!
     
    精品精品国产理论在线观看