• <tt id="ii0ii"><table id="ii0ii"></table></tt>
  • <tt id="ii0ii"></tt>
  • 作者:admin
  • 積分:2061
  • 等級:博士研究生
  • 2015-05-06 11:10:29
  • 樓主(閱:45434/回:7)家裝日記 蘭馨苑150平 地中海風格

    地中海風格具有著獨特的美學特點。一般選擇自然的柔和色彩,在組合設計上注意空間搭配,充分利用每一寸空間,集裝飾與應用于一體,在組合搭配上避免瑣碎,顯得大方、自然,散發出的古老尊貴的田園氣息和文化品位。
    衢州佳盛裝飾實價經營,客戶進店就可看見我公司我單價展示牌,所有工程所需材料品牌和項目單價一目了然
    地址:新湖蘭馨苑
    面積:150平方
    風格:地中海

    歡迎訪問佳盛社區!
  • 作者:admin
  • 積分:2061
  • 等級:博士研究生
  • 2015-05-06 11:11:15
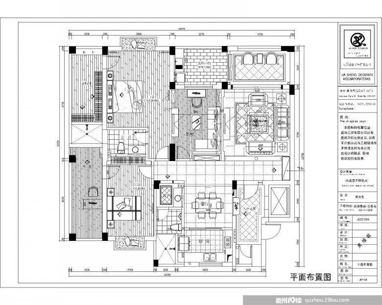
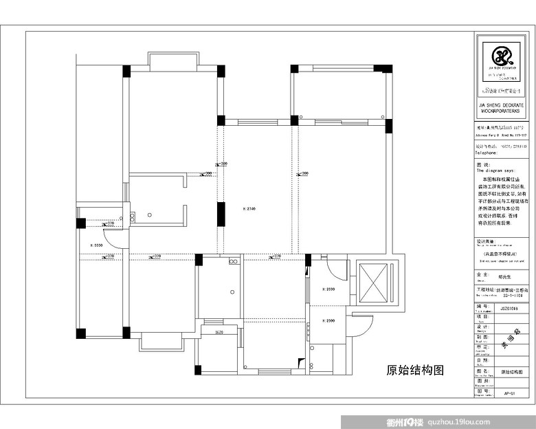
  • 原始結構圖和平面設計布置圖


    歡迎訪問佳盛社區!
  • 作者:admin
  • 積分:2061
  • 等級:博士研究生
  • 2015-05-06 11:11:47
  • 客廳效果圖

    歡迎訪問佳盛社區!
    偶數貼(如:2.4.6.8樓的廣告)
  • 作者:admin
  • 積分:2061
  • 等級:博士研究生
  • 2015-05-06 11:12:53
  • 開工大吉門套套起來




    歡迎訪問佳盛社區!
  • 作者:admin
  • 積分:2061
  • 等級:博士研究生
  • 2015-05-06 11:14:18
  • 放樣進行中...
    設計師和項目經理討論細節問題






    歡迎訪問佳盛社區!
    偶數貼(如:2.4.6.8樓的廣告)
  • 作者:admin
  • 積分:2061
  • 等級:博士研究生
  • 2015-05-06 11:17:53
  • 水電完工嘍
    佳盛裝飾水電工程施工規范
    水電工程施工都是按照嚴格規范的施工有求進行
    規范、安全、放心














    歡迎訪問佳盛社區!
  • 作者:admin
  • 積分:2061
  • 等級:博士研究生
  • 2015-05-06 11:19:42
  • 泥工瓷磚完工






    歡迎訪問佳盛社區!
    偶數貼(如:2.4.6.8樓的廣告)
  • 作者:admin
  • 積分:2061
  • 等級:博士研究生
  • 2015-05-06 11:21:42
  • 木工進行中





    歡迎訪問佳盛社區!


     7/ 1 1
    發帖須知:

    1,發帖請遵守《計算機信息網絡國際聯網安全保護管理辦法》、《互聯網信息服務管理辦法》、 《互聯網電子公告服務管理規定》、《維護互聯網安全的決定》等法律法規。

    2,請對您的言論負責,我們將保留您的上網記錄和發帖信息。

    3,在此發帖表示認同我們的條款,我們有權利對您的言論進行審核、刪除或者采取其他在法律、地方法規等條款規定之內的管理操作。
    內容:
    驗證: 驗證碼,看不清楚?請點擊刷新驗證碼 * 匿名發表需要進行驗證!
     
    精品精品国产理论在线观看