• <tt id="ii0ii"><table id="ii0ii"></table></tt>
  • <tt id="ii0ii"></tt>
  • 作者:admin
  • 積分:2061
  • 等級:博士研究生
  • 2015-05-07 9:56:24
  • 樓主(閱:54810/回:3)新湖玫瑰園20-2后現代排屋靚麗呈現

    話說裝修也是看個人的緣分,業主之前他自己也咨詢了很多家公司,還在對比當中,剛好和之前開工的玫瑰園業主是朋友,房子又在隔壁,就直接問佳盛怎么樣。要么找同一家公司好了這樣2家人還可以相互共同照看,就這樣,業主來到了佳盛裝飾,和設計師經過初步的溝通,也帶客戶看了公司的用材以及施工現場的做工工藝,得到了業主的認可,與之公司簽訂了設計施工合同。就這樣美美的后現代風格出爐了,小編我還是非常喜歡的。

    歡迎訪問佳盛社區!
  • 作者:admin
  • 積分:2061
  • 等級:博士研究生
  • 2015-05-07 9:57:50
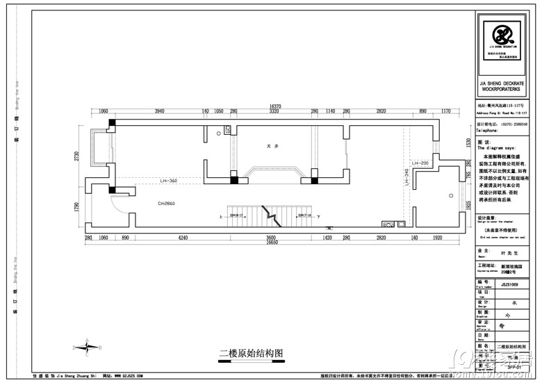
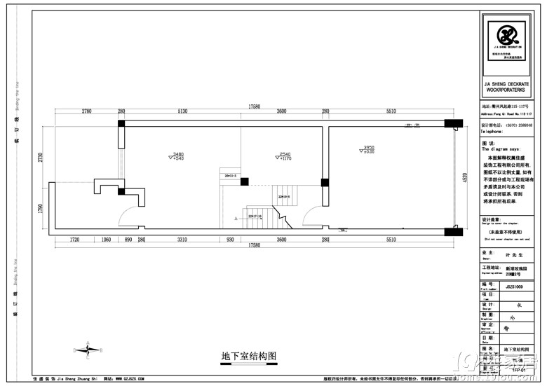
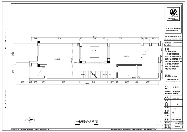
  • 首先上的是房子的原始結構圖,




    歡迎訪問佳盛社區!
  • 作者:admin
  • 積分:2061
  • 等級:博士研究生
  • 2015-05-07 9:59:23
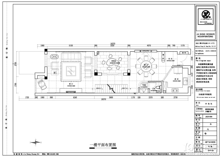
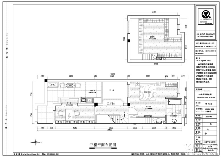
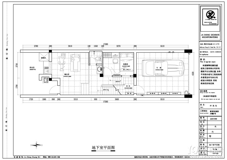
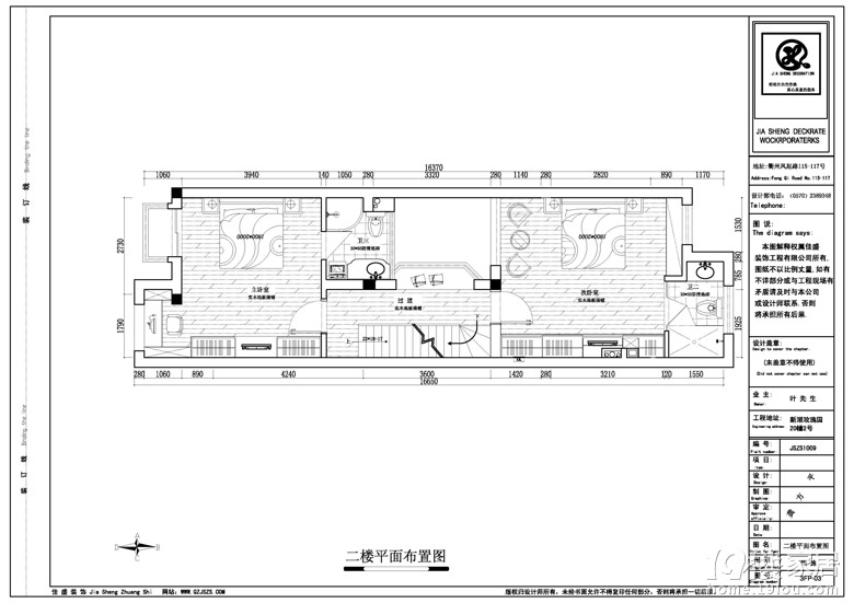
  • 接下來的平面布置圖



    歡迎訪問佳盛社區!
    偶數貼(如:2.4.6.8樓的廣告)
  • 作者:admin
  • 積分:2061
  • 等級:博士研究生
  • 2015-05-07 9:59:59
  • 客廳效果圖,后現代給人典雅舒適的感覺,不像傳統現代的冰冷

    歡迎訪問佳盛社區!


     3/ 1 1
    發帖須知:

    1,發帖請遵守《計算機信息網絡國際聯網安全保護管理辦法》、《互聯網信息服務管理辦法》、 《互聯網電子公告服務管理規定》、《維護互聯網安全的決定》等法律法規。

    2,請對您的言論負責,我們將保留您的上網記錄和發帖信息。

    3,在此發帖表示認同我們的條款,我們有權利對您的言論進行審核、刪除或者采取其他在法律、地方法規等條款規定之內的管理操作。
    內容:
    驗證: 驗證碼,看不清楚?請點擊刷新驗證碼 * 匿名發表需要進行驗證!
     
    精品精品国产理论在线观看