• <tt id="ii0ii"><table id="ii0ii"></table></tt>
  • <tt id="ii0ii"></tt>
  • 作者:admin
  • 積分:2061
  • 等級:博士研究生
  • 2015-05-07 10:04:52
  • 樓主(閱:192107/回:25)家裝日記 沈家南苑御景灣132平 木工已完成

    簡歐風格則在古典歐式風格的基礎上,以簡約的線條代替復雜的花紋,采用更為明快清新的顏色,既保留了古典歐式的典雅與豪華,又更適應現代生活的休閑與舒適。
    衢州佳盛裝飾實價經營,客戶進店就可看見我公司我單價展示牌,所有工程所需材料品牌和項目單價一目了然.公司注重裝修品質和整體效果,
    地址:沈家南苑御景灣2號樓
    設計風格:歐式
    面積:132平方

    歡迎訪問佳盛社區!
  • 作者:admin
  • 積分:2061
  • 等級:博士研究生
  • 2015-05-07 10:05:33
  • 原始結構圖

    歡迎訪問佳盛社區!
  • 作者:admin
  • 積分:2061
  • 等級:博士研究生
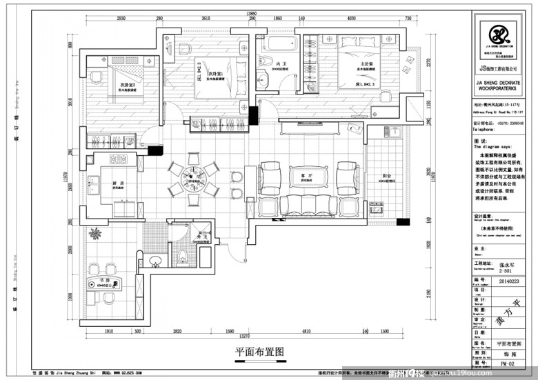
  • 2015-05-07 10:06:14
  • 設計平面圖

    歡迎訪問佳盛社區!
    偶數貼(如:2.4.6.8樓的廣告)
  • 作者:admin
  • 積分:2061
  • 等級:博士研究生
  • 2015-05-07 10:06:58
  • 客廳效果圖

    歡迎訪問佳盛社區!
  • 作者:admin
  • 積分:2061
  • 等級:博士研究生
  • 2015-05-07 10:07:33
  • 主臥效果圖

    歡迎訪問佳盛社區!
    偶數貼(如:2.4.6.8樓的廣告)
  • 作者:admin
  • 積分:2061
  • 等級:博士研究生
  • 2015-05-07 10:08:23
  • 開工大吉話說下去業主家窗外的風景真真不錯,非常開闊



    歡迎訪問佳盛社區!
  • 作者:admin
  • 積分:2061
  • 等級:博士研究生
  • 2015-05-07 10:09:42
  • 開工了 進門項目經理首先就是要把門套套起來

    歡迎訪問佳盛社區!
    偶數貼(如:2.4.6.8樓的廣告)
  • 作者:admin
  • 積分:2061
  • 等級:博士研究生
  • 2015-05-07 10:11:21
  • 把公司的每個項目的施工規范標準貼好




    歡迎訪問佳盛社區!
  • 作者:admin
  • 積分:2061
  • 等級:博士研究生
  • 2015-05-07 10:13:05
  • 注意事項和施工進度表




    歡迎訪問佳盛社區!
    偶數貼(如:2.4.6.8樓的廣告)
  • 作者:admin
  • 積分:2061
  • 等級:博士研究生
  • 2015-05-07 10:13:50
  • 現場核對圖紙



    歡迎訪問佳盛社區!
  • 作者:admin
  • 積分:2061
  • 等級:博士研究生
  • 2015-05-07 10:15:56
  • 要把敲墻的地方放樣



    歡迎訪問佳盛社區!
    偶數貼(如:2.4.6.8樓的廣告)


     25/ 3 123
    發帖須知:

    1,發帖請遵守《計算機信息網絡國際聯網安全保護管理辦法》、《互聯網信息服務管理辦法》、 《互聯網電子公告服務管理規定》、《維護互聯網安全的決定》等法律法規。

    2,請對您的言論負責,我們將保留您的上網記錄和發帖信息。

    3,在此發帖表示認同我們的條款,我們有權利對您的言論進行審核、刪除或者采取其他在法律、地方法規等條款規定之內的管理操作。
    內容:
    驗證: 驗證碼,看不清楚?請點擊刷新驗證碼 * 匿名發表需要進行驗證!
     
    精品精品国产理论在线观看