• <tt id="ii0ii"><table id="ii0ii"></table></tt>
  • <tt id="ii0ii"></tt>
  • 作者:admin
  • 積分:2061
  • 等級:博士研究生
  • 2015-06-11 13:11:17
  • 樓主(閱:42074/回:10)《裝修日記》中央郡110平10-2-401

    [b]案例簡介 Case description

    項目地址:中央郡

    項目風格:簡美

    設計師:黃工

    項目經理:毛工

    開工日期:2015年5月2日

    設計說明:

    歲月就這樣信步走著,悄無聲息,平靜的日子在指尖緩緩流淌。沐浴著和煦的清風,一片片浪漫唯美的金色,覆蓋了遠山和河灣,點點波光宛若無數精靈輕輕搖曳著。醉戀夕陽綻放的美麗,潔白的屋舍被陽光涂上了暖黃的色調,恬靜而溫暖。白色的石膏線條,駝色或者咖啡色的家具。暖暖的,一種叫做幸福的感覺流淌在我的心間。最美的時光迷失在最美的瞬間[/b]

    歡迎訪問佳盛社區!
  • 作者:admin
  • 積分:2061
  • 等級:博士研究生
  • 2015-06-11 13:13:19
  • 主任設計師 黃工


    從事設計行業9年

    設計心語:人為生活而設計,設計為生活而存在。

    設計理念:將設計融于人性,將家居帶入休閑自在的情趣!設計就是著重于點、線、面的靈活運用,把整個環境營造出家的溫馨!

    擅長風格:美式、中式、歐式、現代簡約等各類風格


    歡迎訪問佳盛社區!
  • 作者:admin
  • 積分:2061
  • 等級:博士研究生
  • 2015-06-11 13:22:02
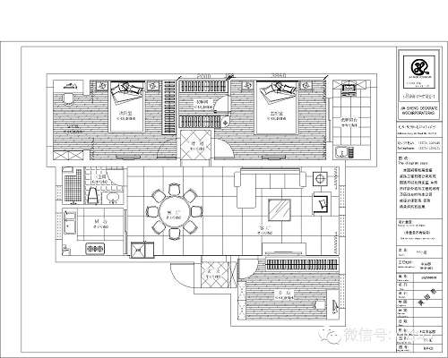
  • 平面布置圖
    歡迎訪問佳盛社區!
    偶數貼(如:2.4.6.8樓的廣告)
  • 作者:admin
  • 積分:2061
  • 等級:博士研究生
  • 2015-06-11 13:28:25
  • 客廳效果圖

    歡迎訪問佳盛社區!
  • 作者:admin
  • 積分:2061
  • 等級:博士研究生
  • 2015-09-07 13:32:03
  • 水電照

    歡迎訪問佳盛社區!
    偶數貼(如:2.4.6.8樓的廣告)
  • 作者:admin
  • 積分:2061
  • 等級:博士研究生
  • 2015-09-07 13:42:07
  • 歡迎訪問佳盛社區!
  • 作者:admin
  • 積分:2061
  • 等級:博士研究生
  • 2015-09-07 13:43:58
  • 歡迎訪問佳盛社區!
    偶數貼(如:2.4.6.8樓的廣告)
  • 作者:admin
  • 積分:2061
  • 等級:博士研究生
  • 2015-09-07 13:44:45
  • 歡迎訪問佳盛社區!
  • 作者:admin
  • 積分:2061
  • 等級:博士研究生
  • 2015-09-07 13:45:57
  • 歡迎訪問佳盛社區!
    偶數貼(如:2.4.6.8樓的廣告)
  • 作者:admin
  • 積分:2061
  • 等級:博士研究生
  • 2015-09-07 13:47:11
  • 歡迎訪問佳盛社區!
  • 作者:admin
  • 積分:2061
  • 等級:博士研究生
  • 2015-09-07 13:48:47
  • 歡迎訪問佳盛社區!
    偶數貼(如:2.4.6.8樓的廣告)


     10/ 1 1
    發帖須知:

    1,發帖請遵守《計算機信息網絡國際聯網安全保護管理辦法》、《互聯網信息服務管理辦法》、 《互聯網電子公告服務管理規定》、《維護互聯網安全的決定》等法律法規。

    2,請對您的言論負責,我們將保留您的上網記錄和發帖信息。

    3,在此發帖表示認同我們的條款,我們有權利對您的言論進行審核、刪除或者采取其他在法律、地方法規等條款規定之內的管理操作。
    內容:
    驗證: 驗證碼,看不清楚?請點擊刷新驗證碼 * 匿名發表需要進行驗證!
     
    精品精品国产理论在线观看