• <tt id="ii0ii"><table id="ii0ii"></table></tt>
  • <tt id="ii0ii"></tt>
  • 作者:admin
  • 積分:2061
  • 等級:博士研究生
  • 2015-06-11 14:14:33
  • 樓主(閱:117196/回:14)《裝修日記》金河灣140平15-2-1202

    案例簡介 Case description

    項目地址:金河灣

    項目風格:簡美

    設計師:黃工

    項目經理:毛工

    開工日期:2015年4月10日

    設計說明:
    總是向往著像風一樣自由的生活:可以無拘無束,可以暢所欲言,可以隨意或躺或臥,可以懶散的依靠在一把舒服的沙發上,踢掉鞋子,赤腳踩在涼卻不冰的地磚上……帶著濃郁休閑味兒的美式風格好像比美國人更懂自由,客廳的墻面、沙發、靠墊、桌椅,以及復古的地磚與地毯,都選用了柔軟的色彩;吊頂、及間隔弧形拱門都采用了簡潔、柔和的線條,在這樣的空間里,仿佛身處空谷幽蘭處,隨時有一陣微風拂來,親吻你的額頭和發尾,無比舒適和自然。

    歡迎訪問佳盛社區!
  • 作者:admin
  • 積分:2061
  • 等級:博士研究生
  • 2015-06-11 14:17:35
  • 主任設計師 黃工

    從事設計行業9年

    設計心語:人為生活而設計,設計為生活而存在。

    設計理念:將設計融于人性,將家居帶入休閑自在的情趣!設計就是著重于點、線、面的靈活運用,把整個環境營造出家的溫馨!

    擅長風格:美式、中式、歐式、現代簡約等各類風格

    歡迎訪問佳盛社區!
  • 作者:admin
  • 積分:2061
  • 等級:博士研究生
  • 2015-06-11 14:19:56
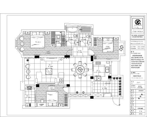
  • 平面布置圖

    歡迎訪問佳盛社區!
    偶數貼(如:2.4.6.8樓的廣告)
  • 作者:admin
  • 積分:2061
  • 等級:博士研究生
  • 2015-06-11 14:21:40
  • 客廳效果圖

    歡迎訪問佳盛社區!
  • 作者:admin
  • 積分:2061
  • 等級:博士研究生
  • 2015-09-03 15:05:52
  • 木工

    歡迎訪問佳盛社區!
    偶數貼(如:2.4.6.8樓的廣告)
  • 作者:admin
  • 積分:2061
  • 等級:博士研究生
  • 2015-09-03 15:06:08
  • 歡迎訪問佳盛社區!
  • 作者:admin
  • 積分:2061
  • 等級:博士研究生
  • 2015-09-03 15:06:26
  • 歡迎訪問佳盛社區!
    偶數貼(如:2.4.6.8樓的廣告)
  • 作者:admin
  • 積分:2061
  • 等級:博士研究生
  • 2015-09-03 15:06:48
  • 歡迎訪問佳盛社區!
  • 作者:admin
  • 積分:2061
  • 等級:博士研究生
  • 2015-09-03 15:07:01
  • 歡迎訪問佳盛社區!
    偶數貼(如:2.4.6.8樓的廣告)
  • 作者:admin
  • 積分:2061
  • 等級:博士研究生
  • 2015-09-07 14:09:20
  • 水電照

    歡迎訪問佳盛社區!
  • 作者:admin
  • 積分:2061
  • 等級:博士研究生
  • 2015-09-07 14:10:04
  • 歡迎訪問佳盛社區!
    偶數貼(如:2.4.6.8樓的廣告)


     14/ 2 12
    發帖須知:

    1,發帖請遵守《計算機信息網絡國際聯網安全保護管理辦法》、《互聯網信息服務管理辦法》、 《互聯網電子公告服務管理規定》、《維護互聯網安全的決定》等法律法規。

    2,請對您的言論負責,我們將保留您的上網記錄和發帖信息。

    3,在此發帖表示認同我們的條款,我們有權利對您的言論進行審核、刪除或者采取其他在法律、地方法規等條款規定之內的管理操作。
    內容:
    驗證: 驗證碼,看不清楚?請點擊刷新驗證碼 * 匿名發表需要進行驗證!
     
    精品精品国产理论在线观看