• <tt id="ii0ii"><table id="ii0ii"></table></tt>
  • <tt id="ii0ii"></tt>
  • 作者:admin
  • 積分:2061
  • 等級:博士研究生
  • 2015-06-17 10:25:55
  • 樓主(閱:47127/回:7)《裝修日記》南苑御景灣排屋265平1-5

    案例簡介 Case description

    項目地址:南苑御景灣

    項目風格:中式混搭

    設計師:小林

    項目經理:毛工

    開工日期:2015年5月25日

    設計說明:
    本案的戶主是一名儒雅的老師,因為對中國傳統文化的喜愛,所以設計師選擇了新中式風格,中式元素與現代材質的巧妙簡柔,明式家具、窗欞、布藝床品相互輝映,再現了移步變景的精妙小品。繼承明清時期家具理念的精華,將其中的經典元素提煉并加以豐富,同時改變原有空間布局,給傳統家具文化注入了新的氣息。中國風并非完全意義上的復古明清,而是通過中式風格的特征,表達對清雅含蓄、端莊豐華的東方式精神境界的追求。在家具的選擇上,明式家具尤其適合江南人使用,是中式家具中的瑰寶。此案整體裝飾效果上把主人對中國傳統文化的熱愛表達得淋漓盡致。戶主有一位非?蓯哿胬男∨畠,在女兒房的設計上并沒有采用相對復古的中式,而是選擇的更具浪漫情懷的簡歐,米色的碎花壁紙,精致的水晶吊燈,都為公主房增加了清新溫馨。

    歡迎訪問佳盛社區!
  • 作者:admin
  • 積分:2061
  • 等級:博士研究生
  • 2015-06-17 10:26:25
  • 主任設計師 小林

    畢業與寧波工程學院,從事設計行業十余年

    設計心語:設計是一種精神,一種態度,一種無限的追求;

    設計理念:無論什么風格都離不開人性化的設計,設計以人為本! 設計源自與生活!

    擅長風格:美式、新古典,新中式,歐式、后現代、現代簡約等各類混搭風格

    歡迎訪問佳盛社區!
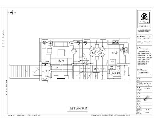
  • 作者:admin
  • 積分:2061
  • 等級:博士研究生
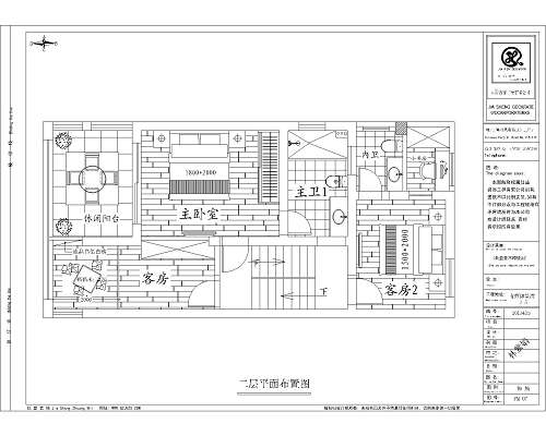
  • 2015-06-17 10:29:40
  • 一層平面布置圖

    歡迎訪問佳盛社區!
    偶數貼(如:2.4.6.8樓的廣告)
  • 作者:admin
  • 積分:2061
  • 等級:博士研究生
  • 2015-06-17 10:30:53
  • 二層平面布置圖

    歡迎訪問佳盛社區!
  • 作者:admin
  • 積分:2061
  • 等級:博士研究生
  • 2015-06-17 10:32:12
  • 三層平面布置圖

    歡迎訪問佳盛社區!
    偶數貼(如:2.4.6.8樓的廣告)
  • 作者:admin
  • 積分:2061
  • 等級:博士研究生
  • 2015-06-17 10:33:55
  • 客廳效果圖

    歡迎訪問佳盛社區!
  • 作者:admin
  • 積分:2061
  • 等級:博士研究生
  • 2015-06-17 10:35:02
  • 餐廳效果圖

    歡迎訪問佳盛社區!
    偶數貼(如:2.4.6.8樓的廣告)
  • 作者:admin
  • 積分:2061
  • 等級:博士研究生
  • 2015-06-17 10:36:13
  • 女兒房效果圖

    歡迎訪問佳盛社區!


     7/ 1 1
    發帖須知:

    1,發帖請遵守《計算機信息網絡國際聯網安全保護管理辦法》、《互聯網信息服務管理辦法》、 《互聯網電子公告服務管理規定》、《維護互聯網安全的決定》等法律法規。

    2,請對您的言論負責,我們將保留您的上網記錄和發帖信息。

    3,在此發帖表示認同我們的條款,我們有權利對您的言論進行審核、刪除或者采取其他在法律、地方法規等條款規定之內的管理操作。
    內容:
    驗證: 驗證碼,看不清楚?請點擊刷新驗證碼 * 匿名發表需要進行驗證!
     
    精品精品国产理论在线观看