• <tt id="ii0ii"><table id="ii0ii"></table></tt>
  • <tt id="ii0ii"></tt>
  • 作者:admin
  • 積分:2061
  • 等級:博士研究生
  • 2015-06-22 9:33:44
  • 樓主(閱:47248/回:9)《裝修日記》君悅東方125平7-1-1303

    案例簡介 Case description

    項目地址:君悅東方

    項目風格:現代

    設計師:黃工

    項目經理:毛工

    開工日期:2015年4月25日

    設計說明:
    這是三口之家的生活秀場。這里沒有樣板房的奢華與嚴謹;沒有繁雜的造型與材質;沒有城市車水馬龍的喧嘩,這里只有家的溫馨舒適與質樸寧靜,是最真實的生活寫照。在有限的空間,有限的裝修資金里,我們設計的宗旨:打造一個充滿情感之家,裝載無限的愛。植物通過光合作用產生氧氣,空間通過光合作用產生情感。白天與黑夜,陽光與燈光給空間注入不一樣的感覺。因此在燈光方面很講究,以暖色的點光源和漫反射為主,營造一個溫暖的家;白天以陽光和自然光為主,給空間注入更多的生命氣息,讓陽光,空氣,微風填滿每一個角落。

    歡迎訪問佳盛社區!
  • 作者:admin
  • 積分:2061
  • 等級:博士研究生
  • 2015-06-22 9:34:10
  • 主任設計師 黃工

    從事設計行業9年

    設計心語:人為生活而設計,設計為生活而存在。

    設計理念:將設計融于人性,將家居帶入休閑自在的情趣!設計就是著重于點、線、面的靈活運用,把整個環境營造出家的溫馨!

    擅長風格:美式、中式、歐式、現代簡約等各類風格

    歡迎訪問佳盛社區!
  • 作者:admin
  • 積分:2061
  • 等級:博士研究生
  • 2015-06-22 9:42:54
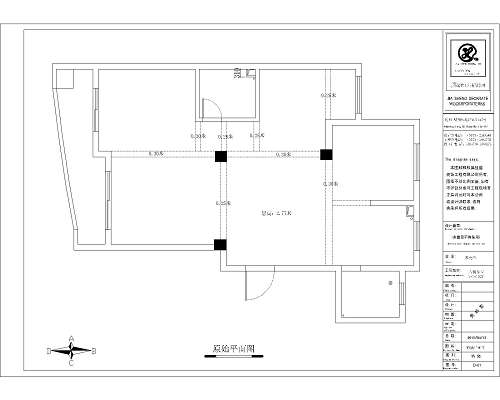
  • 原始結構圖

    歡迎訪問佳盛社區!
    偶數貼(如:2.4.6.8樓的廣告)
  • 作者:admin
  • 積分:2061
  • 等級:博士研究生
  • 2015-06-22 9:43:59
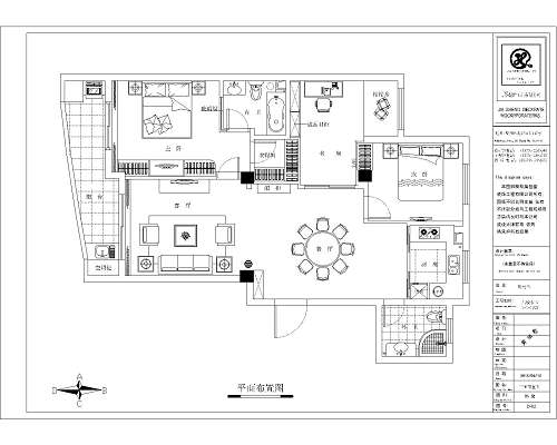
  • 平面布置圖

    歡迎訪問佳盛社區!
  • 作者:admin
  • 積分:2061
  • 等級:博士研究生
  • 2015-06-22 9:45:55
  • 客廳效果圖

    歡迎訪問佳盛社區!
    偶數貼(如:2.4.6.8樓的廣告)
  • 作者:admin
  • 積分:2061
  • 等級:博士研究生
  • 2015-09-09 13:47:34
  • 水電照

    歡迎訪問佳盛社區!
  • 作者:admin
  • 積分:2061
  • 等級:博士研究生
  • 2015-09-09 13:47:56
  • 歡迎訪問佳盛社區!
    偶數貼(如:2.4.6.8樓的廣告)
  • 作者:admin
  • 積分:2061
  • 等級:博士研究生
  • 2015-09-09 13:48:10
  • 歡迎訪問佳盛社區!
  • 作者:admin
  • 積分:2061
  • 等級:博士研究生
  • 2015-09-09 13:48:24
  • 歡迎訪問佳盛社區!
    偶數貼(如:2.4.6.8樓的廣告)
  • 作者:admin
  • 積分:2061
  • 等級:博士研究生
  • 2015-09-09 13:48:33
  • 歡迎訪問佳盛社區!


     9/ 1 1
    發帖須知:

    1,發帖請遵守《計算機信息網絡國際聯網安全保護管理辦法》、《互聯網信息服務管理辦法》、 《互聯網電子公告服務管理規定》、《維護互聯網安全的決定》等法律法規。

    2,請對您的言論負責,我們將保留您的上網記錄和發帖信息。

    3,在此發帖表示認同我們的條款,我們有權利對您的言論進行審核、刪除或者采取其他在法律、地方法規等條款規定之內的管理操作。
    內容:
    驗證: 驗證碼,看不清楚?請點擊刷新驗證碼 * 匿名發表需要進行驗證!
     
    精品精品国产理论在线观看