• <tt id="ii0ii"><table id="ii0ii"></table></tt>
  • <tt id="ii0ii"></tt>
  • 作者:admin
  • 積分:2061
  • 等級:博士研究生
  • 2015-06-23 14:18:54
  • 樓主(閱:98437/回:16)《裝修日記》香榭麗舍145平12-1-602

    案例簡介 Case description

    項目地址:香榭麗舍

    項目風格:地中海

    設計師:黃工

    項目經理:周工

    開工日期:2015年6月19日

    設計說明:

          本案業主是一對準備結婚的小年輕,之前在群里看到我們公司裝修的好多香榭麗舍的房子過來的。在和設計師的溝通之后,選擇了大受年輕群體喜愛的地中海風格。

          鼓浪嶼,用它獨有的慵懶,舒適的氣質讓每個游客都不自覺地放慢了腳步,享受這片刻的海水與天空成為一色的休閑氣息。家亦是如此,喜愛蔚藍的大海,浩瀚的天空。讓住宅也可以如此浪漫。地中海的白,地中海的藍,那么干凈清澈,加上復古吊燈的感覺,又不失穩重大氣。
          在客廳的設計上,設計師大膽采用了半墻做電視背景,這樣使客廳和活動室兩個功能區相互聯系,在視覺上使客廳變得更加大氣。
          在炎炎的夏季里,流連在碧藍海邊,是一種至高的樂趣和享受,海,這千變萬化而變幻莫測的自然奇景,突然讓人心里安靜得出奇。

    歡迎訪問佳盛社區!
  • 作者:admin
  • 積分:2061
  • 等級:博士研究生
  • 2015-06-23 14:20:00
  • 主任設計師 黃工

    從事設計行業9年

    設計心語:人為生活而設計,設計為生活而存在。

    設計理念:將設計融于人性,將家居帶入休閑自在的情趣!設計就是著重于點、線、面的靈活運用,把整個環境營造出家的溫馨!

    擅長風格:美式、中式、歐式、現代簡約等各類風格

    歡迎訪問佳盛社區!
  • 作者:admin
  • 積分:2061
  • 等級:博士研究生
  • 2015-06-23 14:20:42
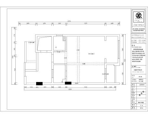
  • 原始結構圖

    歡迎訪問佳盛社區!
    偶數貼(如:2.4.6.8樓的廣告)
  • 作者:admin
  • 積分:2061
  • 等級:博士研究生
  • 2015-06-23 14:21:28
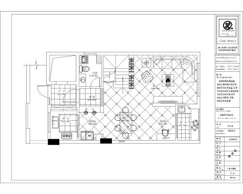
  • 一層平面布置圖

    歡迎訪問佳盛社區!
  • 作者:admin
  • 積分:2061
  • 等級:博士研究生
  • 2015-06-23 14:22:09
  • 二層平面布置圖

    歡迎訪問佳盛社區!
    偶數貼(如:2.4.6.8樓的廣告)
  • 作者:admin
  • 積分:2061
  • 等級:博士研究生
  • 2015-06-23 14:22:58
  • 客廳效果圖

    歡迎訪問佳盛社區!
  • 作者:admin
  • 積分:2061
  • 等級:博士研究生
  • 2015-09-14 13:53:53
  • 水電照

    歡迎訪問佳盛社區!
    偶數貼(如:2.4.6.8樓的廣告)
  • 作者:admin
  • 積分:2061
  • 等級:博士研究生
  • 2015-09-14 13:54:05
  • 歡迎訪問佳盛社區!
  • 作者:admin
  • 積分:2061
  • 等級:博士研究生
  • 2015-09-14 13:54:19
  • 歡迎訪問佳盛社區!
    偶數貼(如:2.4.6.8樓的廣告)
  • 作者:admin
  • 積分:2061
  • 等級:博士研究生
  • 2015-09-14 13:54:35
  • 歡迎訪問佳盛社區!
  • 作者:admin
  • 積分:2061
  • 等級:博士研究生
  • 2015-09-14 13:58:45
  • 泥工照

    歡迎訪問佳盛社區!
    偶數貼(如:2.4.6.8樓的廣告)


     16/ 2 12
    發帖須知:

    1,發帖請遵守《計算機信息網絡國際聯網安全保護管理辦法》、《互聯網信息服務管理辦法》、 《互聯網電子公告服務管理規定》、《維護互聯網安全的決定》等法律法規。

    2,請對您的言論負責,我們將保留您的上網記錄和發帖信息。

    3,在此發帖表示認同我們的條款,我們有權利對您的言論進行審核、刪除或者采取其他在法律、地方法規等條款規定之內的管理操作。
    內容:
    驗證: 驗證碼,看不清楚?請點擊刷新驗證碼 * 匿名發表需要進行驗證!
     
    精品精品国产理论在线观看