• <tt id="ii0ii"><table id="ii0ii"></table></tt>
  • <tt id="ii0ii"></tt>
  • 作者:admin
  • 積分:2061
  • 等級:博士研究生
  • 2015-09-01 14:45:49
  • 樓主(閱:112603/回:14)《裝修日記》君悅東方125平7-1-801

    項目地址:君悅東方

    項目風格:簡歐

    設計師:黃工

    項目經理:毛工

    開工日期:2015年8月24日

    設計說明:
    簡約歐式風格沿襲古典歐式風格的主元素,融入了現代的生活元素。歐式的居室有的不只是豪華大氣,更多的是愜意和浪漫。通過完美的典線,精益求精的細節處理,帶給家人不盡的舒服觸感,實際上和諧是歐式風格的最高境界。這種風格從整體到局部、從空間到室內陳設塑造,精雕細琢,給人一絲不茍的印象。

    歡迎訪問佳盛社區!
  • 作者:admin
  • 積分:2061
  • 等級:博士研究生
  • 2015-09-01 14:47:47
  • 主任設計師 黃工

    從事設計行業9年

    設計心語:人為生活而設計,設計為生活而存在。

    設計理念:將設計融于人性,將家居帶入休閑自在的情趣!設計就是著重于點、線、面的靈活運用,把整個環境營造出家的溫馨!

    擅長風格:美式、中式、歐式、現代簡約等各類風格

    歡迎訪問佳盛社區!
  • 作者:admin
  • 積分:2061
  • 等級:博士研究生
  • 2015-09-01 14:49:23
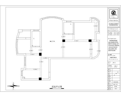
  • 原始結構圖
    歡迎訪問佳盛社區!
    偶數貼(如:2.4.6.8樓的廣告)
  • 作者:admin
  • 積分:2061
  • 等級:博士研究生
  • 2015-09-01 14:58:01
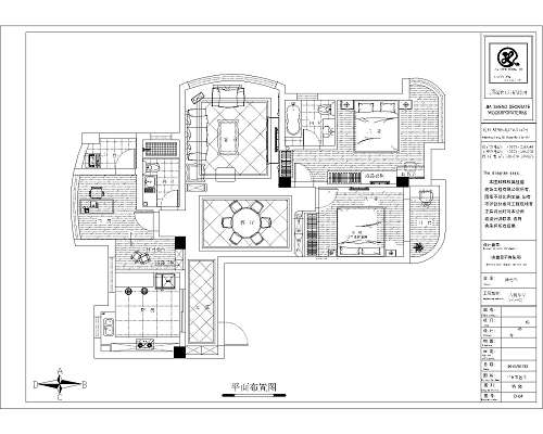
  • 平面布置圖

    歡迎訪問佳盛社區!
  • 作者:admin
  • 積分:2061
  • 等級:博士研究生
  • 2015-09-01 14:58:36
  • 客廳效果圖

    歡迎訪問佳盛社區!
    偶數貼(如:2.4.6.8樓的廣告)
  • 作者:admin
  • 積分:2061
  • 等級:博士研究生
  • 2015-09-03 14:14:03
  • 歡迎訪問佳盛社區!
  • 作者:admin
  • 積分:2061
  • 等級:博士研究生
  • 2015-09-03 14:14:24
  • 歡迎訪問佳盛社區!
    偶數貼(如:2.4.6.8樓的廣告)
  • 作者:admin
  • 積分:2061
  • 等級:博士研究生
  • 2015-09-03 14:14:52
  • 歡迎訪問佳盛社區!
  • 作者:admin
  • 積分:2061
  • 等級:博士研究生
  • 2015-09-03 14:15:14
  • 歡迎訪問佳盛社區!
    偶數貼(如:2.4.6.8樓的廣告)
  • 作者:admin
  • 積分:2061
  • 等級:博士研究生
  • 2015-09-03 14:17:13
  • 歡迎訪問佳盛社區!
  • 作者:admin
  • 積分:2061
  • 等級:博士研究生
  • 2015-09-03 14:18:05
  • 歡迎訪問佳盛社區!
    偶數貼(如:2.4.6.8樓的廣告)


     14/ 2 12
    發帖須知:

    1,發帖請遵守《計算機信息網絡國際聯網安全保護管理辦法》、《互聯網信息服務管理辦法》、 《互聯網電子公告服務管理規定》、《維護互聯網安全的決定》等法律法規。

    2,請對您的言論負責,我們將保留您的上網記錄和發帖信息。

    3,在此發帖表示認同我們的條款,我們有權利對您的言論進行審核、刪除或者采取其他在法律、地方法規等條款規定之內的管理操作。
    內容:
    驗證: 驗證碼,看不清楚?請點擊刷新驗證碼 * 匿名發表需要進行驗證!
     
    精品精品国产理论在线观看