• <tt id="ii0ii"><table id="ii0ii"></table></tt>
  • <tt id="ii0ii"></tt>
  • 作者:admin
  • 積分:2061
  • 等級:博士研究生
  • 2015-09-03 16:43:41
  • 樓主(閱:48323/回:3)《裝修日記》中都和家園122平26-4-202

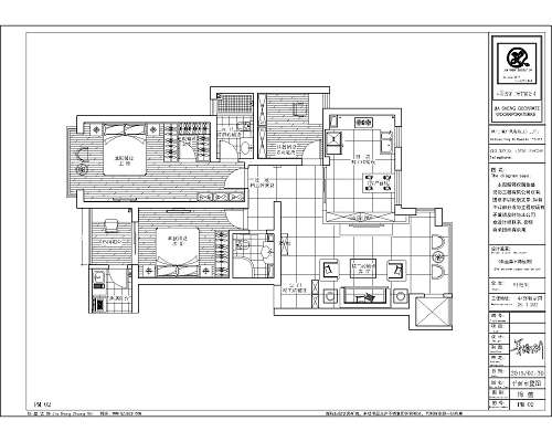
    項目地址:中都和家園26-4-202

    項目風格:現代美式

    設計師:小姜

    項目經理:毛工

    開工日期:2015年8月28日

    設計說明:

    現代美式,主導溶于現代簡約元素,追求低調、高雅的高位生活。電視背景的設計上利用埡口及吊頂清晰劃分。強調簡潔、明朗的線條優雅、得體有度的裝飾,居室色彩主調為白色和中灰色?臻g環境多表現出華美、美麗、浪費的氣氛、過道的矮柜及裝飾畫、裝飾品體現出了裝飾效果,使原本簡單的過道變得更加美觀。

    歡迎訪問佳盛社區!
  • 作者:admin
  • 積分:2061
  • 等級:博士研究生
  • 2015-09-03 16:44:23
  • 從事設計行業五年

    設計心語:一個好的家居,不在于裝的非常豪華,而是在于它空間的趣味性;不要設定一個框架式的美學給業主,畢竟業主是家的主人。

    設計理念:以人為本為中心,創造功能合理、舒適優美、滿足人們物質與精神生活需要的室內環境!

    擅長風格:美式、新古典,新中式,歐式、后現代、現代簡約等各類混搭風格

    歡迎訪問佳盛社區!
  • 作者:admin
  • 積分:2061
  • 等級:博士研究生
  • 2015-09-03 16:44:59
  • 平面布置圖

    歡迎訪問佳盛社區!
    偶數貼(如:2.4.6.8樓的廣告)
  • 作者:admin
  • 積分:2061
  • 等級:博士研究生
  • 2015-09-03 16:45:48
  • 客廳效果圖

    歡迎訪問佳盛社區!


     3/ 1 1
    發帖須知:

    1,發帖請遵守《計算機信息網絡國際聯網安全保護管理辦法》、《互聯網信息服務管理辦法》、 《互聯網電子公告服務管理規定》、《維護互聯網安全的決定》等法律法規。

    2,請對您的言論負責,我們將保留您的上網記錄和發帖信息。

    3,在此發帖表示認同我們的條款,我們有權利對您的言論進行審核、刪除或者采取其他在法律、地方法規等條款規定之內的管理操作。
    內容:
    驗證: 驗證碼,看不清楚?請點擊刷新驗證碼 * 匿名發表需要進行驗證!
     
    精品精品国产理论在线观看