• <tt id="ii0ii"><table id="ii0ii"></table></tt>
  • <tt id="ii0ii"></tt>
  • 作者:admin
  • 積分:2061
  • 等級:博士研究生
  • 2015-09-04 11:19:05
  • 樓主(閱:112195/回:12)《裝修日記》新湖玫瑰園排屋420平25-1

    項目地址:新湖玫瑰園

    項目風格:新中式

    設計師:龔工

    項目經理:周工

    開工日期:2015年8月10日

    設計說明:

          新中式風格以符合現代人的生活習慣的室內居住空間現實舒適的居住生活。其內部空間布置,如客廳、餐廳、臥室完全體現現代生活要求。在室內色彩方面,本案以紅色、暗紅、白等來打造新中式的氣氛,燈具采用簡潔幾何燈具。新中式風格不是純粹的傳統文化元素的假單疊加,而是通過對傳統文化的認識,注入中式的風雅意境,從而使空間散發清雅含蓄、端莊典雅。

    歡迎訪問佳盛社區!
  • 作者:admin
  • 積分:2061
  • 等級:博士研究生
  • 2015-09-04 13:26:07
  • 設計總監 龔工從事設計行業十多年

    設計心語:設計源于生活,生活因設計而改變,成就空間和諧,讓設計物有所值,讓細節締造完美。

    設計理念:空間合理化給人們美的感受,用于探索時代技術賦予空間的新形象,不要拘泥于過去形成的空間形象。

    擅長風格:地中海、美式、后現代、現代鄉村等各種風格。

    歡迎訪問佳盛社區!
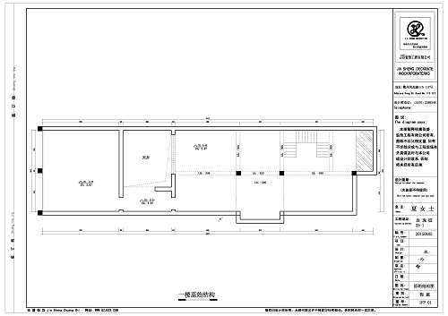
  • 作者:admin
  • 積分:2061
  • 等級:博士研究生
  • 2015-09-04 13:33:05
  • 一層原始結構圖

    歡迎訪問佳盛社區!
    偶數貼(如:2.4.6.8樓的廣告)
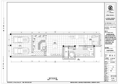
  • 作者:admin
  • 積分:2061
  • 等級:博士研究生
  • 2015-09-04 13:34:08
  • 一層平面布置圖

    歡迎訪問佳盛社區!
  • 作者:admin
  • 積分:2061
  • 等級:博士研究生
  • 2015-09-04 13:34:36
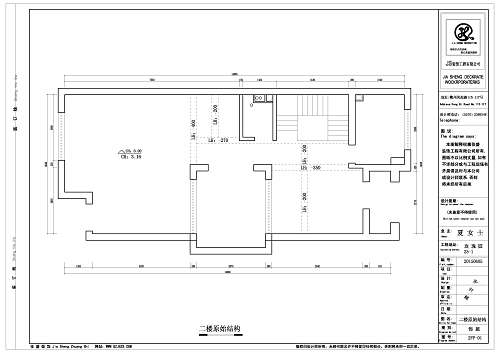
  • 二層原始結構圖

    歡迎訪問佳盛社區!
    偶數貼(如:2.4.6.8樓的廣告)
  • 作者:admin
  • 積分:2061
  • 等級:博士研究生
  • 2015-09-04 13:35:16
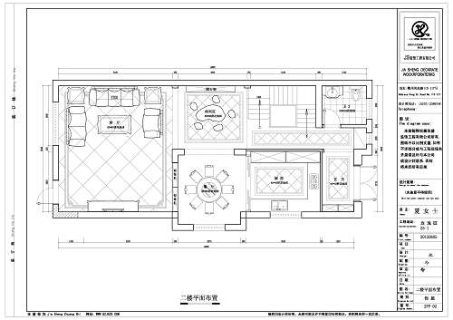
  • 二層平面布置的圖

    歡迎訪問佳盛社區!
  • 作者:admin
  • 積分:2061
  • 等級:博士研究生
  • 2015-09-04 13:35:45
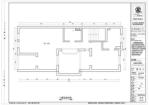
  • 三層原始結構圖

    歡迎訪問佳盛社區!
    偶數貼(如:2.4.6.8樓的廣告)
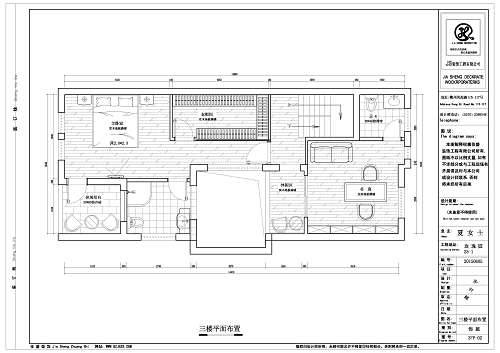
  • 作者:admin
  • 積分:2061
  • 等級:博士研究生
  • 2015-09-04 13:36:18
  • 三層平面布置圖

    歡迎訪問佳盛社區!
  • 作者:admin
  • 積分:2061
  • 等級:博士研究生
  • 2015-09-04 13:36:39
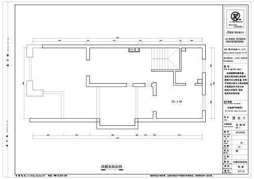
  • 四層原始結構圖

    歡迎訪問佳盛社區!
    偶數貼(如:2.4.6.8樓的廣告)
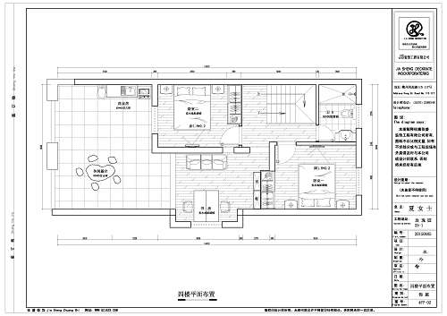
  • 作者:admin
  • 積分:2061
  • 等級:博士研究生
  • 2015-09-04 13:37:35
  • 四層平面布置圖

    歡迎訪問佳盛社區!
  • 作者:admin
  • 積分:2061
  • 等級:博士研究生
  • 2015-09-04 13:38:05
  • 客廳效果圖

    歡迎訪問佳盛社區!
    偶數貼(如:2.4.6.8樓的廣告)


     12/ 2 12
    發帖須知:

    1,發帖請遵守《計算機信息網絡國際聯網安全保護管理辦法》、《互聯網信息服務管理辦法》、 《互聯網電子公告服務管理規定》、《維護互聯網安全的決定》等法律法規。

    2,請對您的言論負責,我們將保留您的上網記錄和發帖信息。

    3,在此發帖表示認同我們的條款,我們有權利對您的言論進行審核、刪除或者采取其他在法律、地方法規等條款規定之內的管理操作。
    內容:
    驗證: 驗證碼,看不清楚?請點擊刷新驗證碼 * 匿名發表需要進行驗證!
     
    精品精品国产理论在线观看