• <tt id="ii0ii"><table id="ii0ii"></table></tt>
  • <tt id="ii0ii"></tt>
  • 作者:admin
  • 積分:2061
  • 等級:博士研究生
  • 2015-09-04 15:06:48
  • 樓主(閱:164839/回:25)《裝修日記》新湖玫瑰園排屋420平25-2

    項目地址:新湖玫瑰園

    項目風格:新中式

    設計師:龔工

    項目經理:周工

    開工日期:2015年8月20日

    設計說明:

         本案以“韻”為題,在整體空間中和諧基調上彰顯出端莊豐華的氣質,軟裝與硬裝上的中式元素的運用,成就了本案的精髓與靈魂,設計中不拘泥于單一的設計風格,力圖在奢華優雅中呈現出中式的文化氣息,追求深沉里顯露尊貴,典雅中浸透奢華的設計表現。

    歡迎訪問佳盛社區!
  • 作者:admin
  • 積分:2061
  • 等級:博士研究生
  • 2015-09-04 15:08:43
  • 設計總監 龔工從事設計行業十多年

    設計心語:設計源于生活,生活因設計而改變,成就空間和諧,讓設計物有所值,讓細節締造完美。

    設計理念:空間合理化給人們美的感受,用于探索時代技術賦予空間的新形象,不要拘泥于過去形成的空間形象。

    擅長風格:地中海、美式、后現代、現代鄉村等各種風格。

    歡迎訪問佳盛社區!
  • 作者:admin
  • 積分:2061
  • 等級:博士研究生
  • 2015-09-04 15:09:24
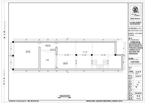
  • 一樓原始結構圖

    歡迎訪問佳盛社區!
    偶數貼(如:2.4.6.8樓的廣告)
  • 作者:admin
  • 積分:2061
  • 等級:博士研究生
  • 2015-09-04 15:10:10
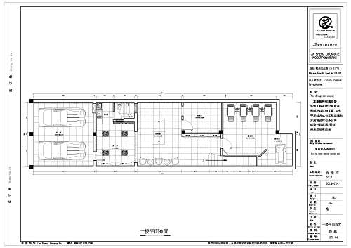
  • 一樓平面布置圖

    歡迎訪問佳盛社區!
  • 作者:admin
  • 積分:2061
  • 等級:博士研究生
  • 2015-09-04 15:10:39
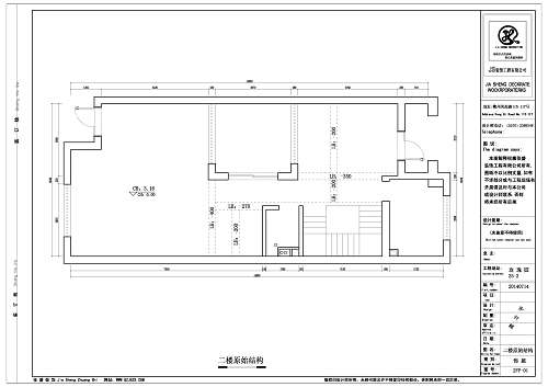
  • 二樓原始結構圖

    歡迎訪問佳盛社區!
    偶數貼(如:2.4.6.8樓的廣告)
  • 作者:admin
  • 積分:2061
  • 等級:博士研究生
  • 2015-09-04 15:11:07
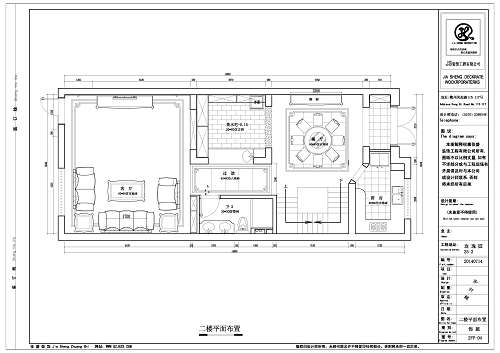
  • 二樓平面布置圖

    歡迎訪問佳盛社區!
  • 作者:admin
  • 積分:2061
  • 等級:博士研究生
  • 2015-09-04 15:11:50
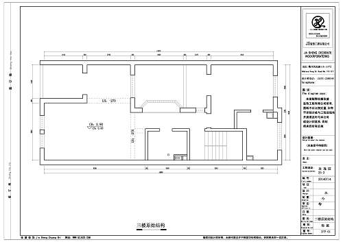
  • 三樓原始結構圖

    歡迎訪問佳盛社區!
    偶數貼(如:2.4.6.8樓的廣告)
  • 作者:admin
  • 積分:2061
  • 等級:博士研究生
  • 2015-09-04 15:12:44
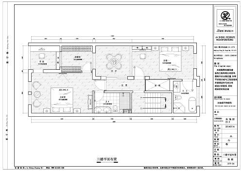
  • 三樓平面布置圖

    歡迎訪問佳盛社區!
  • 作者:admin
  • 積分:2061
  • 等級:博士研究生
  • 2015-09-04 15:14:03
  • 四樓原始結構圖

    歡迎訪問佳盛社區!
    偶數貼(如:2.4.6.8樓的廣告)
  • 作者:admin
  • 積分:2061
  • 等級:博士研究生
  • 2015-09-04 15:14:46
  • 四樓平面布置圖

    歡迎訪問佳盛社區!
  • 作者:admin
  • 積分:2061
  • 等級:博士研究生
  • 2015-09-04 15:16:16
  • 客廳效果圖

    歡迎訪問佳盛社區!
    偶數貼(如:2.4.6.8樓的廣告)


     25/ 3 123
    發帖須知:

    1,發帖請遵守《計算機信息網絡國際聯網安全保護管理辦法》、《互聯網信息服務管理辦法》、 《互聯網電子公告服務管理規定》、《維護互聯網安全的決定》等法律法規。

    2,請對您的言論負責,我們將保留您的上網記錄和發帖信息。

    3,在此發帖表示認同我們的條款,我們有權利對您的言論進行審核、刪除或者采取其他在法律、地方法規等條款規定之內的管理操作。
    內容:
    驗證: 驗證碼,看不清楚?請點擊刷新驗證碼 * 匿名發表需要進行驗證!
     
    精品精品国产理论在线观看