• <tt id="ii0ii"><table id="ii0ii"></table></tt>
  • <tt id="ii0ii"></tt>
  • 作者:admin
  • 積分:2061
  • 等級:博士研究生
  • 2016-10-04 10:54:39
  • 樓主(閱:39931/回:3)《裝修日記》香榭麗舍8-1-604吳總

    案例簡介 Case description

    項目地址:香榭麗舍8-1-604吳總

    項目風格:新中式風格
    設計師:小林

    項目經理:毛工

    開工日期:2016年9月18日

    設計說明:
    新中式風格誕生于中國傳統文化復興的新時期,伴隨著國力增強,民族意識逐漸復蘇,人們開始從紛亂的“摹仿”和“拷貝”中整理出頭緒。在探尋中國設計界的本土意識之初,逐漸成熟的新一代設計隊伍和消費市場孕育出含蓄秀美的新中式風格。在中國文化風靡全球的現今時代,中式元素與現代材質的巧妙兼柔,明清家具、窗欞、、布藝床品相互輝映,再現了移步變景的精妙小品。繼承明清時期家居理念的精華,將其中的經典元素提煉并加以豐富,同時改變原有空間布局中等級、尊卑等封建思想,給傳統家居文化注入了新的氣息。

    歡迎訪問佳盛社區!
  • 作者:admin
  • 積分:2061
  • 等級:博士研究生
  • 2016-10-04 10:58:33
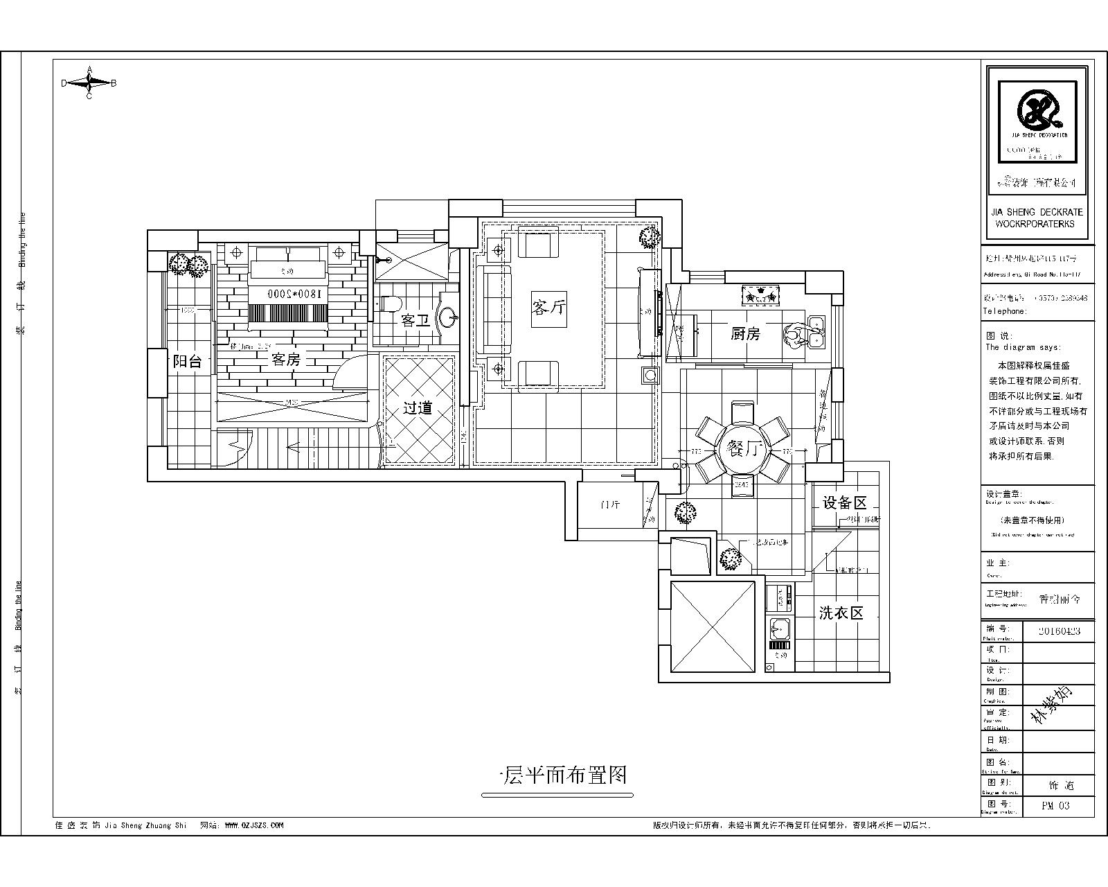
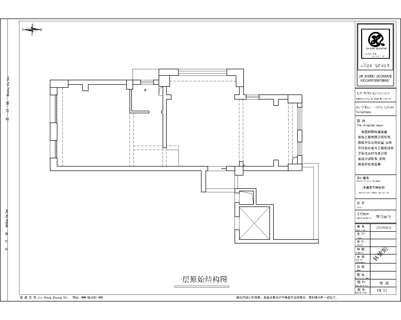
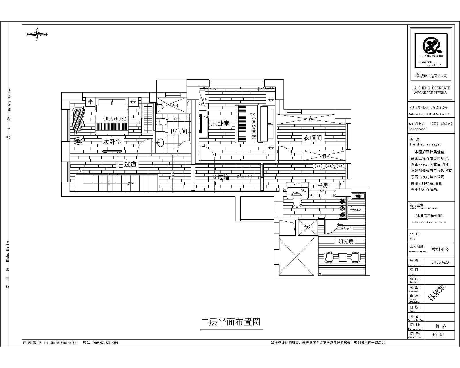
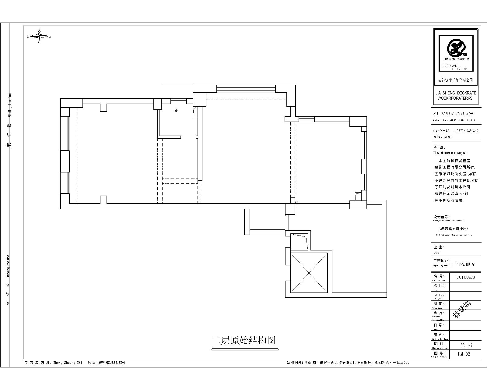
  • 原始結構圖和平面設計布置圖
    歡迎訪問佳盛社區!
  • 作者:admin
  • 積分:2061
  • 等級:博士研究生
  • 2016-10-04 11:01:54
  • 效果圖

    歡迎訪問佳盛社區!
    偶數貼(如:2.4.6.8樓的廣告)
  • 作者:admin
  • 積分:2061
  • 等級:博士研究生
  • 2016-10-04 11:06:27
  • 開工大吉門

    歡迎訪問佳盛社區!


     3/ 1 1
    發帖須知:

    1,發帖請遵守《計算機信息網絡國際聯網安全保護管理辦法》、《互聯網信息服務管理辦法》、 《互聯網電子公告服務管理規定》、《維護互聯網安全的決定》等法律法規。

    2,請對您的言論負責,我們將保留您的上網記錄和發帖信息。

    3,在此發帖表示認同我們的條款,我們有權利對您的言論進行審核、刪除或者采取其他在法律、地方法規等條款規定之內的管理操作。
    內容:
    驗證: 驗證碼,看不清楚?請點擊刷新驗證碼 * 匿名發表需要進行驗證!
     
    精品精品国产理论在线观看