• <tt id="ii0ii"><table id="ii0ii"></table></tt>
  • <tt id="ii0ii"></tt>
  • 作者:admin
  • 積分:2061
  • 等級:博士研究生
  • 2016-10-04 11:17:56
  • 樓主(閱:46767/回:4)(家裝日記)-陽光水岸6-3-902

    案例簡介 Case description

    項目地址:金河灣

    項目風格:美式

    設計師:小林

    項目經理:毛工

    開工日期:2016年9月20日

    設計說明:

    美式風格家居就如同美國獨立精神一般,講究的是如何通過生活經歷去累積自己對藝術的啟發及對品味的喜好,從中摸索出獨一無二的美學空間。

    就如同常見的美國電影里面的美式居家,有家人的照片在角落里,有不舍得放棄的陽臺小花園,有開放廚房繞著全家的笑聲,有明亮的浴室讓人去除疲倦。美式居家說的不只是一種風格,也是一種生活態度,相信您也會愛上它。

    家居自由隨意、簡潔懷舊、實用舒適;暗棕、土黃為主的自然色彩;

    歐洲皇室家具平民化、古典家具簡單化;家具寬大、實用舒適;

    側重壁爐與手工裝飾,追求粗獷大氣、天然隨意;

    歡迎訪問佳盛社區!
  • 作者:admin
  • 積分:2061
  • 等級:博士研究生
  • 2016-10-04 11:18:35
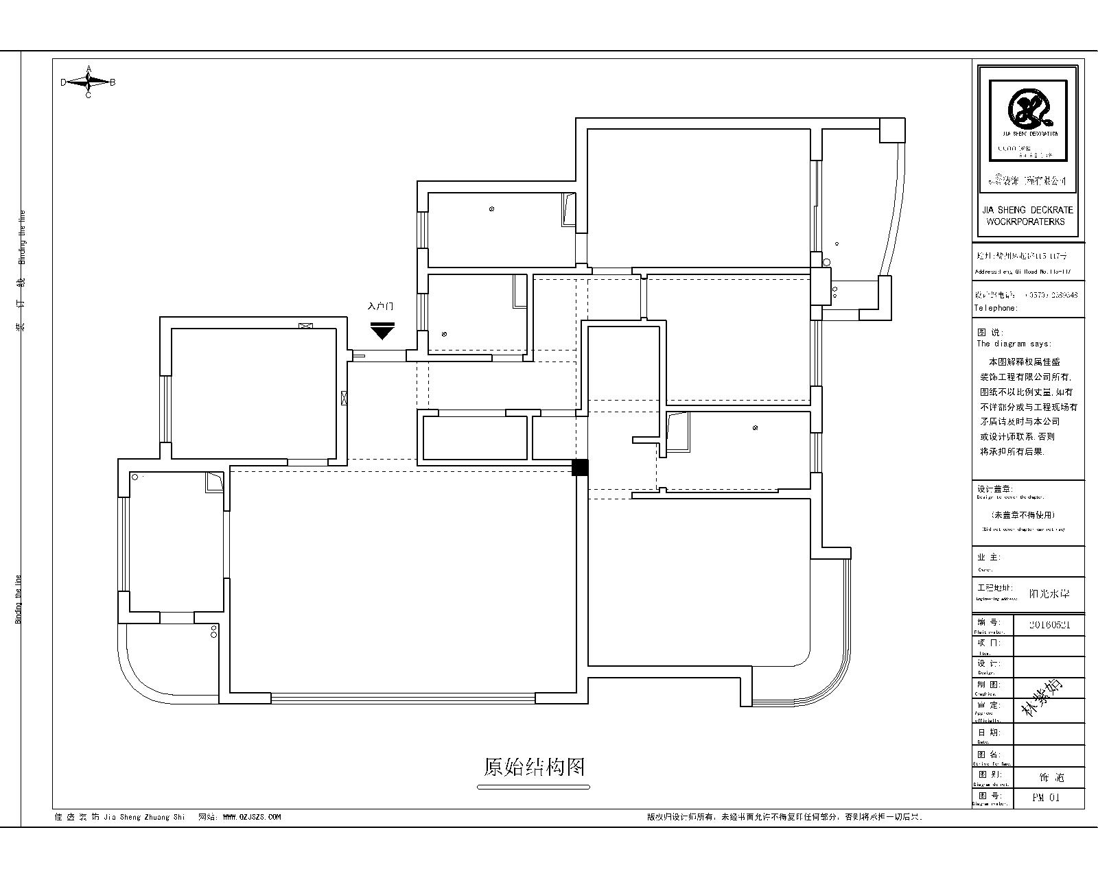
  • 平面布置圖

    歡迎訪問佳盛社區!
  • 作者:admin
  • 積分:2061
  • 等級:博士研究生
  • 2016-10-04 11:22:03
  • 效果圖

    歡迎訪問佳盛社區!
    偶數貼(如:2.4.6.8樓的廣告)
  • 作者:admin
  • 積分:2061
  • 等級:博士研究生
  • 2016-10-04 11:25:01
  • 開工大計

    歡迎訪問佳盛社區!
  • 作者:admin
  • 積分:2061
  • 等級:博士研究生
  • 2016-10-04 11:25:34
  • 小區大門

    歡迎訪問佳盛社區!
    偶數貼(如:2.4.6.8樓的廣告)


     4/ 1 1
    發帖須知:

    1,發帖請遵守《計算機信息網絡國際聯網安全保護管理辦法》、《互聯網信息服務管理辦法》、 《互聯網電子公告服務管理規定》、《維護互聯網安全的決定》等法律法規。

    2,請對您的言論負責,我們將保留您的上網記錄和發帖信息。

    3,在此發帖表示認同我們的條款,我們有權利對您的言論進行審核、刪除或者采取其他在法律、地方法規等條款規定之內的管理操作。
    內容:
    驗證: 驗證碼,看不清楚?請點擊刷新驗證碼 * 匿名發表需要進行驗證!
     
    精品精品国产理论在线观看