別墅案例 當前位置:首頁>產品展示>別墅案例

- 詳細介紹


項目地址:新湖蘭馨苑39-1401
項目風格:美式風格
設 計 師:胡建新
項目經理:毛存忠
開工日期:2016年9月20日
設計說明:胡建新
簡約美式風格不需要太多的花樣和繁雜的色系,而是在主張簡約的同時不失尊貴,強調一種心神的回歸 。本案無論在空間布局、色彩運用上,還是在材質選擇上,處處尊崇簡而不凡的簡約美式簡約風格。實 木的家具,沉穩的皮具沙發,復古的電視背景墻,流露出一股濃濃的美洲風情.客廳深棕色的沙發,規整的地 面瓷磚拼花,瞬間給人一種尊貴之感;客廳和餐廳之間通透的背景墻設計,豐富了空間的層次感。臥室是業 主休息的空間,也是停留時間最長的地方,所以遵從了功能性和美觀性相結合的原則。臥室的亮點是整 面皮革硬包的床頭背景墻,這個造型與實木地板相呼應,增強了空間的開闊性。
設計師:胡建新

項目經理:毛工

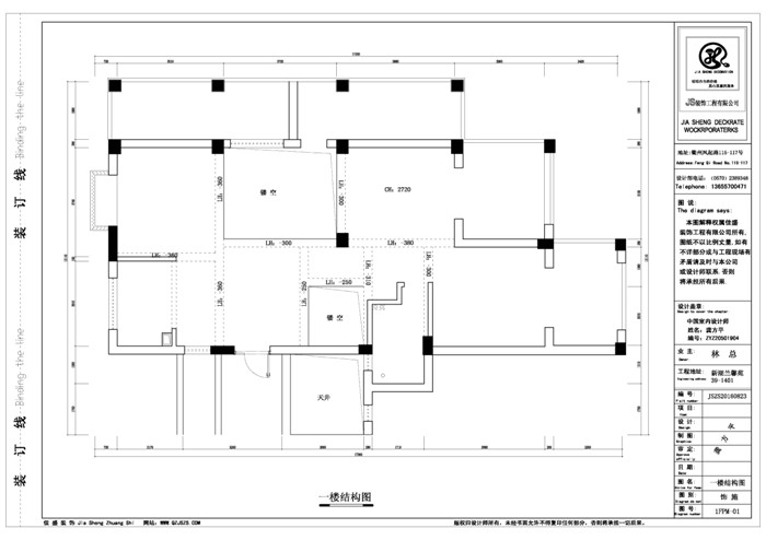
原始框架圖:

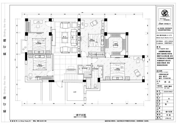
原始平面圖:

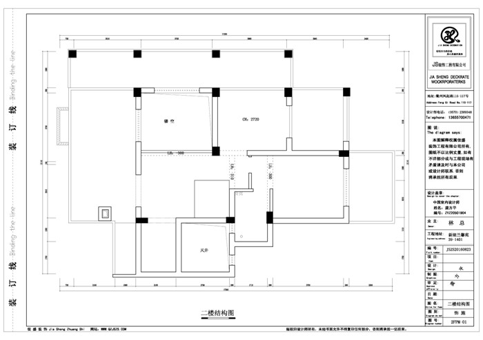
二樓結構圖:

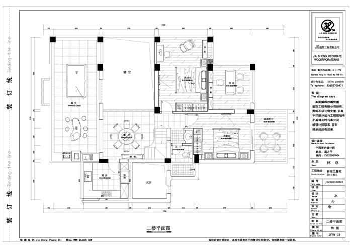
原始平面圖:

客廳效果圖:

主臥效果圖:

餐廳效果圖:

現場開工圖(小區外景):

現場合影:業主、設計師、項目經理

開工禮炮慶祝:

地貼門套保護:


水電完工圖:










泥工完工圖:


樓梯瓷磚貼好,保護膜覆蓋






木工吊頂制作


大理石基礎制作






佳盛裝飾公司簡介:
2003年,衢州市佳盛裝飾工程有限公司成立。其業務范圍包括:住宅 、公寓、娛樂空間、辦公空間、陳列展館等工程的裝飾裝修、設計及施工。公司秉承“服務到永遠”的經營理念,誠信打造透明工程,全力營造放心消費環境。用質量來表現,用服務來關懷,依靠客戶口碑來不斷提升佳盛品牌的知名度和影響力。
一直以來,“佳盛人”以客戶的新房我的家為宗旨,以品牌建設為中心,致力于創造完美空間,展現精湛工藝。 在設計上,崇尚人性化、多元化、藝術化、更加強調功能、結構和形式的完整,追求材料、技術、空間的表現深度與精確,創造出別具風格的工作和生活環境。用領先的設計和專業的施工,做品味空間的引領者!
2010年被評為衢州市裝飾行業協會副會長單位;
2011年被衢州市工商行政管理局評為衢州市家庭裝飾消費維權示范單位;
2012年家裝設計大賽中被衢州市廣播電視總臺評為觀眾最喜愛家裝設計獎;
2013年被評為衢州市裝修行業12315消費者維權聯絡站;
2012-2013年被衢州市柯城區住房城鄉建設局評為衢州市家裝行業骨干企業;
2014年被裝飾協會評為衢州市首批倡導綠色裝修單位;
2014年被衢州市工商行政管理局評為衢州市誠信裝飾公司;
2011-2016年被衢州晚報評為十家最值得信賴的裝飾企業;
2016年被市場監督管理局評為衢州市誠信裝飾企業;
佳盛裝飾,期待與您共同長期發展!
公司榮譽:


衢州市佳盛裝飾工程有限公司
地址:浙江省衢州市西區雙嶺南路285號(翡翠灣小區東側)
電話:0570- 3068373
手機:13867013688
聯系人:周先生
網址:www.selsebeel.com
衢州市佳盛裝飾工程有限公司
地址:浙江省衢州市西區雙嶺南路285號(翡翠灣小區東側)
電話:0570- 3068373
手機:13867013688
聯系人:周先生
網址:www.selsebeel.com
- 上一個:香格里拉5-1 下一個:幸福家園37-6返回產品列表



